建筑师|这位新野蛮主义建筑师的灵感,竟来源于小时候玩的积木
本文图片
Rafael Pardo毕业于Veracruzana大学建筑系 , 他对设计、形态以及光影的相互作用的热情 , 让他的设计和建筑风格脱颖而出 , 赢得了国内外的认可的好评 。
本文图片
Rafael Pardo在2000年于韦拉克鲁斯州的萨拉帕市创办RP Arquitectos , 他们以提供高质量的项目而闻名 , 其设计和建造采用的工艺和材料在该地区并不常见 。 在公共和私人领域发展的建设性经验使他能够与他所在地区的居民和RP Arquitectos设计的空间的使用者建立直接和和谐的对话 , 从而促进他们的更好的生活方式与质量 。
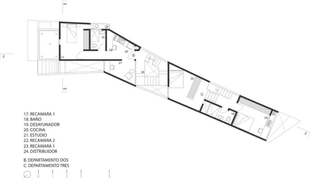
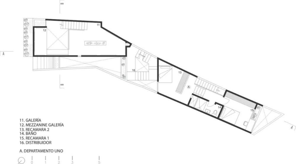
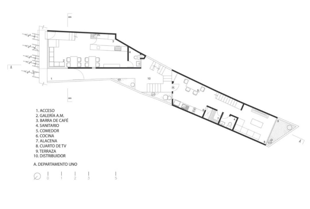
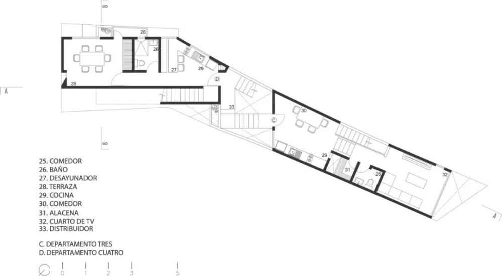
本文图片
本文图片
本文图片
本文图片
本文图片
本文图片
本文图片
本文图片
本文图片
【建筑师|这位新野蛮主义建筑师的灵感,竟来源于小时候玩的积木】
本文图片
本文图片
本文图片
本文图片
本文图片
本文图片
本文图片
本文图片
本文图片
路易·康是一位著名的建筑师 , 20世纪最具影响力的建筑师之一 。 他设计的不朽而永恒的建筑融合了空间的反思性构造影响着Rafael Pardo , 在建筑生涯中 , 他被康的一本书读深深吸引:空间和光线的使用、以及表观材料的使用 。 从那时起 , 他便与这种明显的混凝土材料建立了密切的联系 , 热衷于实施一个建筑系统 , 他已经从事了12年 , 这在哈拉帕和该地区是没有先例 。
本文图片
本文图片
本文图片
本文图片
本文图片
本文图片
本文图片
本文图片
本文图片
本文图片
本文图片
本文图片
本文图片
在他看来 , 混凝土的优点是它是一种迷人的触感和永恒的材料 。 在一天结束的时候 , 感觉就像回到一个洞穴里 , 一个原始而有自由的地方 , 材料是这个空间的重要部分 。 这并不意味着他的建筑是基于一种材料 , 但在很大程度上这就是他们所使用的材料 。
本文图片
本文图片
本文图片
本文图片
本文图片
本文图片
本文图片
本文图片
本文图片
本文图片
本文图片
本文图片
本文图片
本文图片
本文图片
本文图片
本文图片
本文图片
本文图片
本文图片
除了巴拉甘、柯布西耶、密斯 , 日本建筑也极大地影响了他的工作以及在哈拉普式或墨西哥建筑的方式 , 因为正是通过设计的智慧和对气候方面更深的认知 , 使建筑营造出友好的空间 , 并将其融入环境以及当下的社会 , 让人们感到舒适和快乐 。
本文图片
本文图片
本文图片
本文图片
本文图片
本文图片
本文图片
本文图片
本文授权转自:内外之间
版权声明:【除原创作品外 , 本平台所使用的文章、图片、视頻及音乐属于原权利人所有 , 因客观原因 , 或会存在不当使用的情况 , 如 , 部分文章或文章部分引用内容未能及时与原作者取得联系 , 或作者名称及原始出处标注错误等情况 , 非恶意侵犯原权利人相关权益 , 敬请相关权利人谅解并与我们联系及时处理 , 共同维护良好的网络创作环境】
推荐阅读
- 这位妈妈火了,朋友圈连发60天早餐,网友:好喜欢,天天抄作业
- 引力|引力,是恒星的建筑师,行星的引导者,也是开启宇宙的钥匙
- 张玉花|从载人航天到探月、追火,这位中国“航天女神”问天路上不为人知的那些事
- 周毓麟|为祖国的需要三次改变研究方向 追忆这位从上海弄堂成长的数学家
- 宋加雷|研究成果被《自然》杂志媒体频道专题报道,莞工这位教师不一般
- 哈佛大学|这位哈佛大牛科学家为何相信“外星人早已到访过”?
- 疫苗|拜登怎么也没想到,美疫苗研发能如此顺利,全是因这位中国科学家
- 天问一号|飞往火星的天问一号嫦娥五号都“听”她的,这位90后姑娘太厉害了
- 火星|调度天问一号奔向火星,这位90后小姐姐太飒了!
- 喷气推进实验室|这位“顶尖天才”在美国地位有多高?高到让你以为是在胡扯!
