平米|仅仅花了19万元,就把143平米的三居室装修的美轮美奂
143平米的房子怎么设计比较好呢?本套案例来自无锡海岸城,将143平米的房子设计成三居室,采用的装修方式,装修费用仅花了19万,装修风格选择了美式,我们一起来看看他是怎么设计的。
作品简介:1.美式轻奢是时尚的象征,是超凡脱俗的西式华丽庄重的蜕变,更加符合现代大众的审美及需求,金属材质的选择让整个空间都更具唯美时尚感。软装饰品及家具融入金属元素更加凸显其品质,高端的生活品质在于细节,美式轻奢既具有西方文化的魅力,又融入现代设计的线条美,生活若是一首歌,那风格则是美妙的旋律。2.一个空间的划分是设计的重要之处,扬长避短将户型的优势最大化,弥补其细微处的小缺憾,充分展现出整个空间的价值。在设计上该户型选择客餐门厅一体化,空间通透性好,空气流动性强,舒适性更佳,在满足功能上需求的同时,视觉上的美观性也更加重要,选择特效漆及天然石材搭配无毒系列护墙板,在环保的基础上造型感丰富,时尚感强,空间整体搭配将美式轻奢的优雅精致完美展现。设计缘起:美式的古典结合现代金属感设计结构改造:扩大门厅面积,达到客餐门厅一体化设计空间色调:以雾霾蓝和灰色系为主功能亮点:客餐一体,半开放式厨房设计
客厅的装修很考验设计者的功底,美式风格虽然并不传统,但是也是比较有特点的装修了,区域处理的不好就很容易让装修变得本末倒置,分不清室内的重点。这个客厅的设计非常成功,将每一个角落都运用得合理,而且非常实用。

文章图片
简单的石膏线条搭配纯色特效漆简单大方,金属饰品更加提高了空间的精致感,软装搭配也多选用金属元素的单品

文章图片
电视背景墙-选用雾霾蓝木质墙板与白色系大理石相搭配,层次性好,颜色对比感强,整体造型设计时尚前卫
卧室的主要功能是休息,属于私人空间,所以卧室装修不必有过多的造型,卧室装修越简洁越好,墙壁可适当做些点缀,还要注意墙壁材料和家具的搭配得当。卧室装修设计风格可以根据窗帘、床罩等软装决定,它们的色彩影响了卧室的风格,装修的时候要格外留心。

文章图片
简单背景墙设计精致美观,整体以舒适性为主,暖灰色为主色调,金色进行点缀,精致大气,空间明亮时尚
卫生间是我们日常生活中解决生理问题的区域,洗漱洗浴都在这里进行,防水工程要做好,同时防滑的功能也不可忽视,防滑砖的铺贴还需讲究颜色搭配和尺寸的选择。

文章图片
-壁挂马桶,挑高式浴室柜设计使用更加方便,无卫生死角,砌筑壁龛美观实用,淋浴房干湿分离
餐厅讲究所谓的“秀色可餐”,作为主人,无论是整体布局,还是软装搭配,都需要追求细节的完美。倾心打造的餐厅不仅凝聚了主人的心血,也会留给朋友一个深刻的印象。

文章图片
餐厅-中西厨结合设计使用更加方便,定制酒柜美观性强,提高了生活品质,客餐门厅一体通过地面波打线
儿童房对于孩子们来说,是他们的一个小天地。除了注重休息的功能之外,儿童房还应该加入一些儿童元素,在油漆工程和家具上多用点心就好了。

文章图片
简单淡绿色壁布饰面,适合男女孩居住,高低床设计解决了空间不足的问题,定制书桌书柜满足孩子学习空间
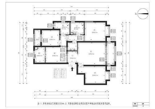
以下就是本套无锡海岸城小区143平米三居室房子的户型图。

文章图片
三室两厅两位-户型图
【 平米|仅仅花了19万元,就把143平米的三居室装修的美轮美奂】以上就是无锡海岸城小区三居室装修的案例了,怎么样看起来是不是很好,虽然是美式的风格,但是却很适合现代年轻人。如果你家也是143平米,也是三居室,也需要美式的装修风格,可以参考一下哦!今天这套装修案例就给大家介绍到这里,希望对要装修的朋友有帮助!
推荐阅读
- 2人的晚餐,3道菜花了18元,鲜美有滋味
- 晒晒我家素食晚餐,每天不重样,顿顿好吃不长肉,7天花了80元!
- 芹菜加一宝,每天炒一盘,胃口好了,眼不花了,头发越来越好
- 花了5元不到,做了一盘开胃菜,只放了一点油,吃着比肉还香
- 适合一家四口的晚餐分享,花了不到200块,简单实惠,家人超爱吃
- 朋友聚餐,5个人点了10道菜花了350元,都说太值了
- 两个人的午餐,花了不到30块,荤素搭配很营养,关键还简单
- 晒晒婆婆做的晚餐,3菜1汤花了200元,网友却说:没有硬菜
- 痛风|科学表明,高尿酸不仅仅是痛风,这些危害同样很可怕
- 酵母|酵母——不仅仅用于制作面包和啤酒
