门头沟区|门头沟区572套共有产权房面向城六区家庭配售
位于门头沟区永定镇曹各庄地区的诺德彩园共有产权房项目现开放二次申购登记 , 持续到10月23日 。 这次待配售的572套房源 , 同时面向门头沟区和北京市城六区申购家庭 。
文章插图
文章插图
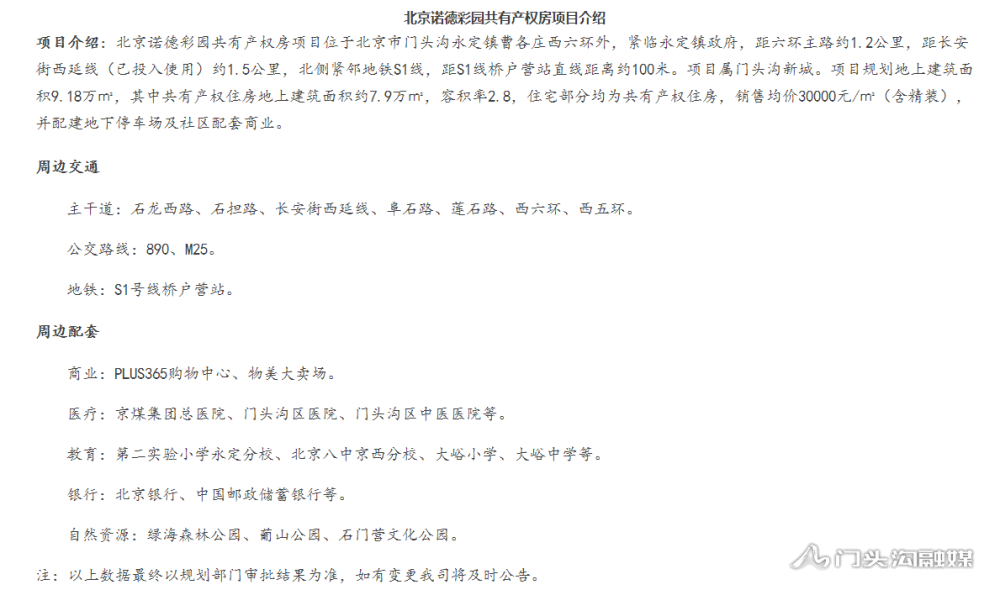
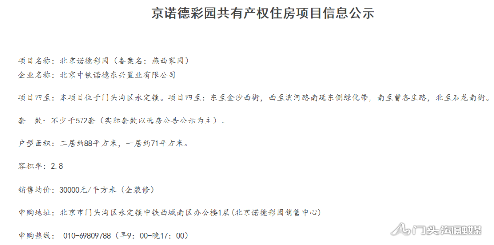
属于第二次申购的诺德彩园共有产权房项目位于门头沟区曹各庄地区 , 房源总套数936套 , 此次配售的是首次申购后剩余的572套房源 , 包括88平方米两居和71平方米一居两种户型;项目售价在30000/平方米(含全装修费用) 。 单套住房的购房人产权份额比例为65% 。 总房款预计在213万至264万之间 。
文章插图
文章插图
文章插图
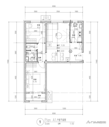
二居室户型图
在采访中采访人员了解到 , 与第一次申购不同的是 , 二次申购时放宽了销售门槛 , 允许城六区申购家庭跨区进行选购;除了在门头沟区居住和工作的家庭外 , 在东城区、西城区、朝阳区、海淀区、丰台区和石景山区居住和工作的家庭也可以参与本次申购 。
文章插图
文章插图
文章插图
根据申购公告 , 此次配售的572套房源 , 面向本市户籍无房家庭和非本市户籍无房家庭 。 申购家庭应在申购阶段如实填写家庭信息 , 并据实承诺符合本次申购相关条件 。 选房前提交的纸质材料应与网申家庭信息保持一致 。 对通过隐瞒家庭住房状况、伪造相关证明等方式 , 弄虚作假 , 骗购共有产权住房的家庭 , 一经查实 , 严格按照《北京市共有产权住房管理暂行办法》取消其资格 , 禁止其十年内再次申请本市各类保障性和政策性住房;由开发企业与其解除合同、并由购房家庭承担相应的违约责任和法律责任 。
文章插图
文章插图
文章插图
申购家庭可以登录北京市住房和城乡建设委员会官网进行注册登记 , 参与共有产权房项目申购 。
网上申购网址:http://zjw.beijing.gov.cn/
文章插图
门头沟融媒采访人员:张修钰
来源: 北京号
作者:北京门头沟官方发布
【门头沟区|门头沟区572套共有产权房面向城六区家庭配售】流程编辑:王梦莹
推荐阅读
- 幼儿园|门头沟这个社区新增一所幼儿园
- 公租房|门头沟2020年公租房摇号结果来啦!
- 投资者提问:请问贵公司的线下销售渠道是什么模式?今天去挂着华帝门头的店面看...
- 孤岛惊魂!门头沟俩男子钓鱼太投入,天黑水急被困河中央
- 门头沟区启动对口帮扶涿鹿县开展儿童青少年近视调查工作
- |暖暖重阳 文明相伴 门头沟区五大重阳节系列活动助力全国文明城区创建
- |门头沟重阳节老年创城主题广场跳出“重阳欢唱,舞动夕阳”的最炫民族风
- 西达|叠翠流金!门头沟这里的满山红叶等你来
- 主打置顶|叠翠流金!北京门头沟这个村的满山红叶等你来
- 古迹|门头沟斋堂天仙庙,500多年古迹,荒草丛生,残破不堪
