公租房|门头沟2020年公租房摇号结果来啦!
文章插图
公租房项目信息回顾:
1、西山燕庐公租房项目基本情况介绍
一、项目配套情况
周边交通:
公交路线:
【公租房|门头沟2020年公租房摇号结果来啦!】周边公交线路纵横 , 890路、 931路、960路、964路、 965路、 981路、 994路、 m02路、快速直达专线107路、快速直达专线139路、快速直达专线68路石龙工业区站 , 959路、977快、977路冯村大桥站 。
自驾路线:
路线1:沿阜石路西行 , 至双峪路(第一个红绿灯) , 左转南行约3km , 至冯万路右转即到 。
路线2:沿莲石路西行至石门营环岛 , 右转驶入石龙南路 , 北行约1km , 至冯万路左转即到 。
小区内配套:配套商业、社区服务中心等 。
周边公共设施:
休闲购物:365plus商场 , 冯村商业街、熙旺中心等 。
医疗保健:京煤集团总医院、门头沟区妇幼保健院 , 门头沟区医院等 。
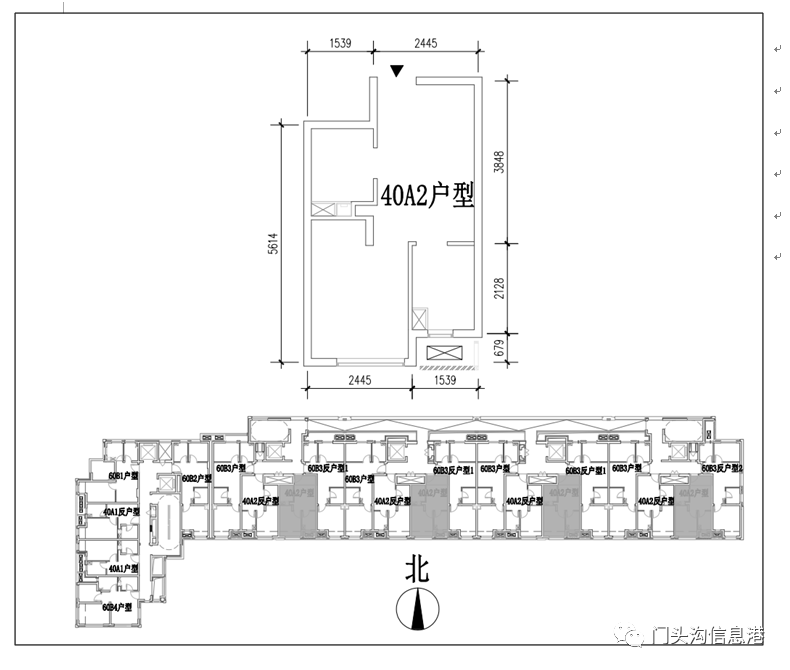
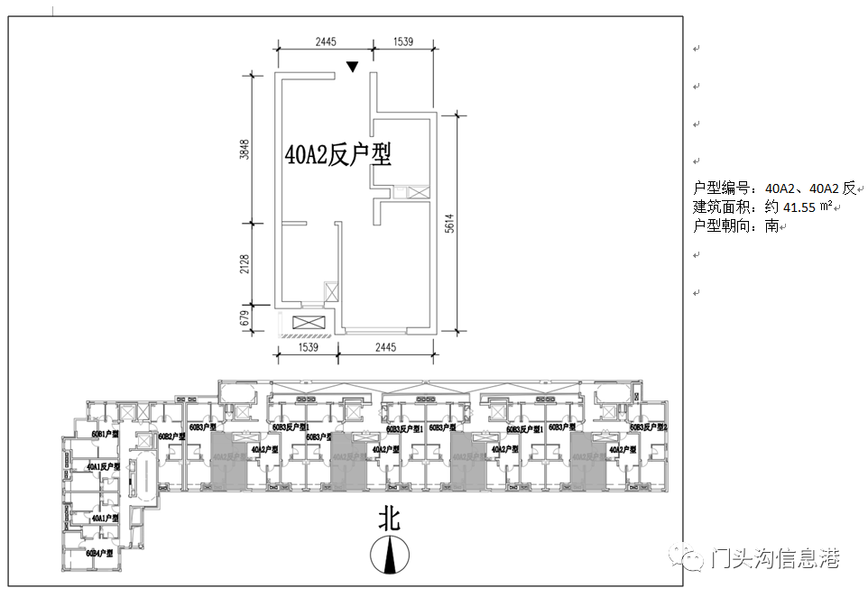
三、户型详细信息
文章插图
文章插图
文章插图
文章插图
文章插图
文章插图
文章插图
文章插图
文章插图
文章插图
文章插图
2、华宸雅苑公租房项目户型图
文章插图
文章插图
文章插图
文章插图
文章插图
文章插图
文章插图
文章插图
文章插图
文章插图
文章插图
文章插图
文章插图
文章插图
文章插图
文章插图
推荐阅读
- 百度|AI公司百度能给港交所带来什么?
- 晒晒我家一周的晚餐,每天3个菜,每天都不重样,老公直夸真贤惠
- 虾别再煮着吃了,我换种做法外酥里嫩,老公一口气干掉一盘,佩服
- 吸烟|戒烟的最佳年龄已公布,提醒:若在正确的年龄戒烟,或可延年益寿
- 火星|首批来自火星的声音:NASA公布“毅力号”录制音频
- 粉丝如此做真解馋,不蒸不炖不焖,好吃营养,老公一下子吃了一盘
- 用牛奶搭配做个甜品,味道香营养好,老公孩子抢着吃
- gitlab|GitLab成立中国合资公司极狐,强调“独立运营”
- 小行星|3月22日巨型小行星逼近地球!速度12万公里/小时,可能发生撞击?
- 看到儿子的亲子鉴定,丈夫叹气,婆婆破口大骂,最后公公说……
