古木|97平新中式三居室,一盆绿植,两杯清茶,忆年少之事
时光荏苒,转眼我们白发苍苍,此时我们不复青春。晚风急,吹皱芳华太无情。唯愿与你靠在木椅上,一盆绿植,两杯清茶,忆年少之事。古木檀香小筑,经文诵的缓。或逢儿女归来,你依然为他们做可口的饭菜。一家人在暖灯下欢聚一堂,人生便得圆满。
客厅的设计太重要了,如果你家里有小孩,不建议你的客厅家具和装修太过于繁琐,因为小孩需要充足的空间供他玩乐,而且现在电视也不是人们生活的必须品,所以现在很多人家的电视都是摆设,那么电视背景墙就可以简单一下,现在很多人家不做背景墙了,只是贴上壁纸就可以起到很好的装饰作用。很多人都纠结到底要不要吊顶,其实小编觉得这个根据自己家的情况而定,要是装修预算有限客厅就不要用吊顶了。
文章插图
客厅,电视背景,唯愿与你靠在木椅上,一盆绿植,两杯清茶,忆年少之事。
文章插图
客厅,沙发背景,古木檀香小筑,经文诵的缓。
餐厅的装修要注意色彩,色彩要温馨一些,能够增加人的食欲。餐厅的色彩适合用明郎轻快的色调,一些橙色系列的颜色给人一种温馨的感觉,也能够让促进人的食欲。
文章插图
餐厅,低头间他看到我新添置的茶具,便要为我泡一杯热茶。看他熟练的温具、置茶、冲泡、奉茶,一套流程如行云流水一般。我才意识到他的成长,心中惆怅更是欣喜。
文章插图
餐厅,或逢儿女归来,你依然为他们做可口的饭菜。
文章插图
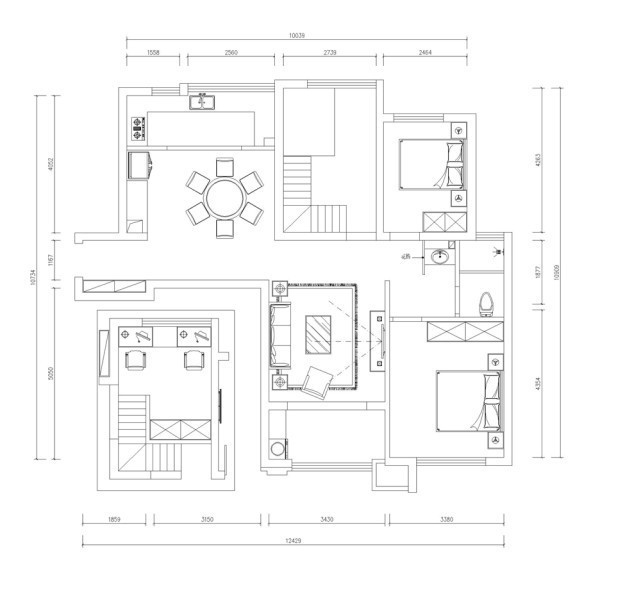
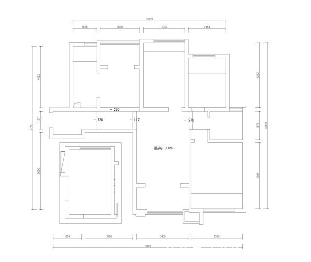
户型图,原始结构图,平面布局了。
文章插图
【 古木|97平新中式三居室,一盆绿植,两杯清茶,忆年少之事】户型图,原始结构图,平面布局
推荐阅读
- 中式|65岁左右的微胖女人,冬季再懒也别穿得像“老阿姨”,这样穿更美
- 薄款|经典不分年龄!66岁博主把“中式服装”穿得好贵气,奶奶辈可照搬
- 外面的世界|真正有钱的人,都喜欢造中式庭院,风雅还显品味,美的像桃园一样
- 中式|旗袍的中式美风,这才是国粹中的经典,细腻温婉儒雅
- 婚俗|海口推进婚俗改革 6对新婚夫妻举办中式集体婚礼
- 北京市|2022成都考中式烹调师证人员需具备什么技能?
- 文艺|中式改良旗袍裙,棉麻材质、宽松A字版型,小清新风格
- 办公室|中式风格办公室装修要点
- 设计师|新中式风格办公室设计技巧
- 气质|改良中式服装穿出你不一样的气质
