储物空间|北京65㎡老破小,房屋装满柜子,收纳比大户型还丰富,住着真爽
对于大部分奔波在一线城市的人而言 , 房子够住 , 工资够花 , 就算是一种幸福 。 然而对于白手起家的“北漂族”来说 , 能在这个地方拥有一个属于自己的温馨舒适的小窝 , 真的是可以自豪一辈子 。 今天分享的案例就是如此 , 屋主是一对年轻人 , 花巨资买下这套65㎡的老破小 , 别看房龄高 , 却也很抢手 。
文章插图
客厅全景
设计师看过现场后 , 真的是半平米都不敢浪费掉 , 实现小空间拥有大收纳的完美规划 , 储物面积展开高达78㎡ , 比全屋面积还大十多平 , 却做到没有影响整个空间的视觉感 , 依然显得宽敞明亮 。
设计简介
家庭成员是两个人加一只小狗 , 屋主酷爱收藏瓷器和老物件 , 除了常规衣物收纳之外 , 还要考虑瓷器收藏品展示 , 卫浴部分硬性需求 , 一台洗衣机、一台烘干机、一个壁挂洗衣机和一个浴缸 。
文章插图
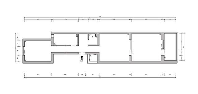
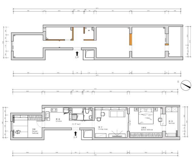
原始户型图
从原始户型看 , 设计难度不止那么一点 , 这套房屋是典型的窄长结构老房子 , 南北朝向 , 东西向3.6m , 南北跨度19m左右 , 承重墙将整个户型分成四部分 , 而且不能改动 。
文章插图
改造前样子
户型优势:南北通透 , 每个房间相对规整 , 卧室宽度3.6m足够叠放一张床、一个衣柜还留有走路空间 。 而且厨房的隔墙可以拆掉 , 乃是不幸中的万幸 。 缺点是老房管道也多 , 不可改变位置 , 过道拥挤闭塞 , 利用率很低 , 而且中间部分无自然光 。
文章插图
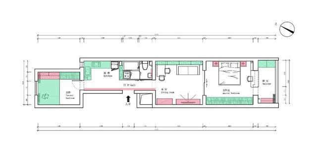
平面设计图
果然设计师没有令屋主一家人失望 , 做出的方案十分完美 , 为他们提供非常舒适便利的生活空间 , 改动如下:
将非承重部分全部拆除 , 利用玻璃隔断和储物柜划分开 , 释放更多使用空间;
厨房改为开放式的 , 原过道墙面增加储物功能 , 扩大空间利用率;
在马桶改变不了情况下 , 实现多室分离设计 , 满足屋主对卫浴部分的需求 。
文章插图
储物空间示意图
每个家庭都有各种各样的需要收纳整理的物品 , 常用的衣物、鞋子、包包、被褥 , 儿童的玩具和工具箱等 , 不常用却舍不得丢的东西都需要地方存放起来 。
文章插图
储物空间示意图
设计师将储物分成两块 , 零散的细小物品就近收纳归拢一起 , 不常用的大件杂物和换季的衣物用定制家具做大面积收纳 。 尽管拥有超大的储物容量 , 却不影响空间的通透感 , 依然显得宽敞明亮 。
屋内实景
文章插图
过道
进门就是狭长的过道 , 设计师利用木饰面装饰墙面 , 增加门厅处的置物功能 , 另外顶面也安装多个筒灯 , 解决了无自然光照射问题 。 显得通透又明亮 。
文章插图
玄关
门口的地上贴心放上地垫和简易的鞋架 , 足够两口人日常换鞋需求 , 墙面可以挂钥匙、全身镜、小摆件和遛狗的绳子 。
文章插图
客餐厅
穿过走廊进入到客餐厅 , 一眼望去可以看到主卧的阳台 , 卧室床尾嵌入式的65公分深度衣柜一点也不阻碍人的视线 , 显得格外整洁美观 。
文章插图
沙发背景墙
沙发的背面是一整面的储物展示柜 , 嵌入式设计保证空间整洁有序 , 不仅解决客餐厅大量储物和展示需求 , 也不会影响人的视线 , 丝毫没有因柜体厚度感受到拥挤感 。
文章插图
沙发背景墙
客厅位于户型中间区域 , 完全没有自然光进入的 , 整体选择白色和原木色为主 , 提升整个空间亮度 , 展示柜的尽头有一个管道 , 所以做成百叶门形式 , 美观实用 。
文章插图
瓷器展示
这些看似不起眼的物品都是具有历史价值的 , 也是屋主最爱的收藏品 , 每一件得来都花费了不少功夫 , 可以说非常的珍贵 。
文章插图
餐厅
餐厅的背景墙是一幅中国传统的山水画 , 营造安静惬意的氛围 , 餐桌旁边的展示柜也兼顾餐厅收纳作用 , 保证了桌面的整洁美观 , 偶尔喝喝茶水 , 看看书都是非常舒服的事情 , 分散式光源保证空间的照明无死角 。
文章插图
文章插图
餐边柜
餐桌正对面是一个透明的储物柜 , 最上面放置花瓶点缀 , 台面上还能放水杯托盘 , 下面用来收纳 , 玻璃柜门增加通透感 , 我也忍不住想拥有一个 。
文章插图
电视柜
电视柜旁边藏着一个藤编筐 , 搭配绿植给客厅增加一些自然的气息 。
文章插图
厨房
将原先厨房的隔断墙拆掉之后 , 厨房空间变大了 , 和过道共享公共空间 , 实现了双赢 。 原来门口的主管道通过百叶柜门包裹上 , 不影响美观 , 水盆方向可以安装粘钩 , 挂手套、毛刷等 , 增添便利性 。
文章插图
厨房
操作台下面的灵活小推车 , 是一个亮点 , 给厨房增加一个操作空间 , 下面还可以用来储物 。 厨房和卫生间中间的收纳柜是现场制作的 , 双向储物空间 , 一部分属于厨房放置小型电器 , 另一边当做卫生间的壁龛 , 最大化提升此处的空间利用率 。
文章插图
浴缸、洗衣房
卫生间是多空间分离 , 总共有四扇移门 , 浴缸和洗衣房放在一处 。
文章插图
干区
洗手盆、马桶、壁挂洗衣机放在一个空间里 , 互不影响 。
文章插图
镜柜
镜柜也是业主对比很多选择了这款 , 不仅尺寸刚好合适 , 还结合镜前灯 , 多方向折叠镜面以及储物柜功能 , 深度也可以容纳吹风机 , 简直完美 。
文章插图
玻璃推拉门
传统的木质浴缸比瓷器的省空间 , 内部空间也足够大 , 洗浴非常的方便 。 移动不同的推拉门可以满足多个场景需求 。
文章插图
主卧
文章插图
床头背景墙
床头是淡青色 , 结合胡桃木家具 。 给人一种沉稳不失淡雅的格调 。
文章插图
综合性衣橱
大衣柜是一个综合性储物空间 , 内部没有做层板 , 是吊柜折叠门+宜家的组合形式 。
文章插图
阳台
拆不掉的阳台部分被当作书桌使用 。
文章插图
小储物间
阳台角落里也是收纳空间 , 利用帘子好遮挡 。
文章插图
脏衣架
另一边是衣架子 , 挂着要洗的衣物 。
文章插图
次卧
文章插图
次卧
次卧是箱体储物的榻榻米+衣柜的组合 , 衣柜里面是嵌入式的书桌 , 腿也有地方放 , 而且也是个小储物空间 , 非常的实用 。
文章插图
官帽椅
业主在老家找到的清代官帽椅 。
结尾
如果你家也是类似的户型结构 , 愿意尝试这种设计吗?欢迎评论区留下你的想法 , 感谢阅读 , 了解更多精彩案例和内容 , 点个关注吧
【储物空间|北京65㎡老破小,房屋装满柜子,收纳比大户型还丰富,住着真爽】文字编辑:舍鸡佬聊装修/设计:七巧天工
推荐阅读
- 甲状腺疾病|甲状腺疾病患者可以接种新冠疫苗吗?北京疾控释疑
- 北京疾控|北京疾控:甲状腺疾病患者新冠疫苗预防接种注意这些事
- 国际空间站|重达2.9吨!国际空间站竟扔了一块巨大的太空垃圾
- 北京|北京沙尘暴的空气污染远超你的想象,它有八种方式伤害你的健康!
- 诺如病毒|【北京疾控提醒您】开学季!如何应对诺如病毒!
- 宇宙|宇宙空间为什么是平坦的?而不是一个球?
- 宇宙|宇宙到底有多大?如何测量宇宙空间曲率?
- 北京|“京黄失色”!十年最强沙尘暴为何比以往都猛一些?
- 沙尘暴|北京遭遇沙尘暴天空出现蓝太阳?网友称犹如在火星上看!专家解读
- nasa|NASA展示国际空间站“小型花园”和植物实验
