厨房设计|北京发现一户人家,面积仅60㎡收纳不输大户型,厨房设计更机智
一对普通北漂夫妻 , 勤俭节约、吃苦耐劳 , 终于靠自己打拼在工作的城市北京、买下了一套60㎡的一房两厅;在没有孩子之前 , 小夫妻过着属于他们的两人世界、从来没有感觉到房子太小;不过自从有了孩子以后、这个家好像发生了一系列的变化 , 储物空间太小了、卧室空间不够用了 。
房子刚买没几年 , 再换房的可能性对于这对靠自己打拼的年轻人来说目前基本不可能 , 本着“生活不能将就”的想法 , 将改善居住环境的希望寄托于装修改造 。
文章插图
别看房子面积不大 , 装修可以说很完美;在设计师的帮助下 , 榨干每个空间 , 半点空间都舍不得浪费 , 完工收纳不输大户型;满足各项功能的同时 , 居住一家三口人好舒适 , 厨房设计更是机智 , 下面给大家晒晒 , 眼见为实哈!
案例基本信息介绍
文章插图
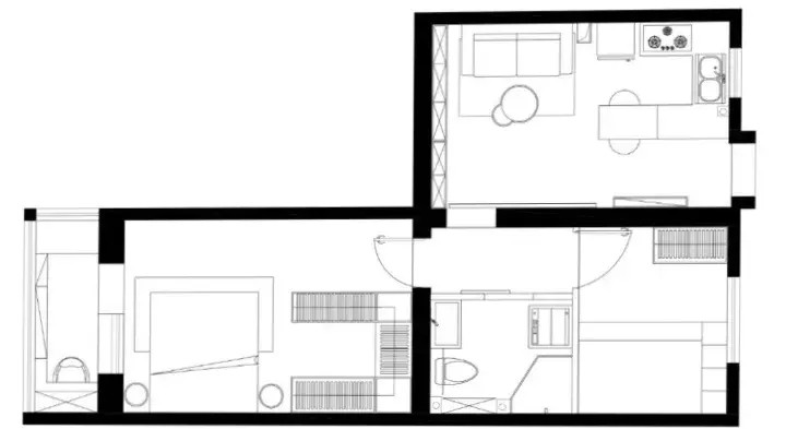
原始户型虽然是一房两厅 , 但是餐厅紧凑无采光 , 卫生间不到3㎡ , 别说干湿分离 , 放下孩子的浴盆都困难 。
而屋主希望有两间卧室 , 有一个较为宽敞的客厅、让孩子有一定的活动空间 , 卫生间也要大一点、方便给孩子洗澡 , 还希望有独立的阅读与学习区域 , 更希望有强大的收纳空间 , 满足日常生活所需 。
文章插图
屋主在设计师的帮助下 , 打破原有格局 , 将室内空间重新做了如下规划调整:
1 , 打通原有封闭式厨房改开放式 , 改善采光 。
2 , 借用岛台设计玄关收纳与并解决用餐空间 。
3 , 缩小原客厅面积改为儿童房 , 并利用释放出来的空间扩大卫生间 。
室内效果讲解
文章插图
▲厨房
原始户型进门独立玄关对于“寸土寸金”的小户型而言、其实空间是较为浪费;经过改造后的厨房与玄关之间岛台隔断 , 扩大台面操作功能的同时 , 厨房做满吊柜也感觉不到拥挤;原本只能容纳一人的厨房 , 现在可以利用玄关过道的空间让家人参与到烹饪美食的过程中来 , 近乎完美 。
文章插图
也由于岛台扩宽满足了厨房的切配需求 , 厨房放下冰箱依然感觉不到拥挤 , 为生活带来了便利性 。
色调搭配也是亮点 , 白色烤漆门板配亮白色大理石纹理墙砖 , 在黑灰色家用电器衬托下清爽干净又不会太单调 , 冰箱与地砖相呼应 , 耐看又耐脏 。
文章插图
▲岛台细节亮点
1 , 岛台内嵌入带滚轮伸缩餐桌 , 满足用餐需求收起又不占空间 。
2 , 靠近进户门位置将岛台柜体一分为二 , 隔出约30公分深度作为玄关鞋柜用 。
文章插图
冰箱旁边原本是一个烟管 , 经过装修改造后保持原有烟管的使用功能 , 外部设壁龛作为餐边柜用;从视觉感观上化解了冰箱带来的突兀感 , 使得空间更有整体感 。
文章插图
▲玄关
进门左边 , 一个超级薄款置物架 , 方便进门手机、钥匙顺手搁置;黑色挂钟点缀与厨房家电相呼应 , 香薰蜡烛与屋主旅游拍摄的风景画点缀 , 简约不失精致耐看 。
文章插图
▲客厅
厨房灰色地砖延伸至客厅 , 配上白色亚光美缝剂 , 收纳柜也添加了黑灰色元素点缀左右相呼应 , 稳重大气又耐脏 , 视觉简约、层次感又不单调 , 美极了 。
文章插图
投影布代替电视机 , 对于小户型而言最大的优点是“收放”自如 , 不需要电视墙电视柜;当然有了投影仪 , 家里瞬间变成了小影院 , 居家舒适度自然也就上一个档次 。
文章插图
沙发旁边的收纳柜其实只用了20公分的厚度 , 就实现了生活杂物收纳与弥补玄关收纳功能的不足 , 柜门安装按压反弹器 , 将柜体的存在感降到最低 。
文章插图
▲卫生间
打开过道的谷仓门里面是卫生间 。
文章插图
卫生间放进去了洗衣机 , 还有较为宽敞的洗漱淋浴空间;虽然单片玻璃隔断没有封闭式淋浴房隔湿效果好 , 但是对于屋主而言 , 在有限的空间内方便放下浴盆给孩子洗澡更重要 。
文章插图
落水管刷白 , 搭配绿植点缀让空间不紧凑 , 还烘托出清新洁净的空间氛围 。
文章插图
▲儿童房
以大白墙为底色、搭配原木色地板衬托 , 加以孩子喜欢的暖黄色、暖橘子点缀 , 营造出舒适温馨、又充满儿童趣味性的居室氛围 。
文章插图
衣柜紧贴书桌位置壁龛设计 , 小小的卧室满足休息、收纳、学习于一体 , 通过合理利用空间后不紧凑 。
文章插图
高低上下铺床 , 客人来了还能借宿 。
文章插图
文章插图
▲主卧收纳巨无霸
整体采用现代简约风设计 , 摒弃床头柜、用连体收纳柜代替的设计手法 , 满足屋主对收纳空间的需求 。
文章插图
衣柜内部摒弃隔板折叠区 , 挂衣区与抽屉相结合 , 收纳更整齐 , 空间利用率更高 。
文章插图
阳台与卧室之间原本的隔断窗去除 , 利用窗下的隔断墙设计成吧台 , 增加居室的趣味性 。
文章插图
文章插图
阳台左右分别是办公区与卡座式阅读区 。
文章插图
文章插图
个人非常喜欢阳台的大理石窗台 , 这里是将原有窗台做加宽处理设计而来的 , 种上花草盆栽为空间增添大自然的清新气息 , 倍感舒适 。
【厨房设计|北京发现一户人家,面积仅60㎡收纳不输大户型,厨房设计更机智】本案就分享到这里了 , 感谢设计师与屋主分享这么优质的装修案例 , 让大家多了一些参考借鉴;在这里祝大家生活愉快 , 下期见!
推荐阅读
- 甲状腺疾病|甲状腺疾病患者可以接种新冠疫苗吗?北京疾控释疑
- 北京疾控|北京疾控:甲状腺疾病患者新冠疫苗预防接种注意这些事
- 四大美食酱,中华美食的“灵魂”,第一种厨房必备,老干妈落榜
- 【养生厨房】今日菜谱——《草头排骨》
- 宇宙|科学家发现神奇图案,被称为“上帝指纹”,宇宙是被设计好的吗?
- 北京|北京沙尘暴的空气污染远超你的想象,它有八种方式伤害你的健康!
- 诺如病毒|【北京疾控提醒您】开学季!如何应对诺如病毒!
- 临床试验|案例实战|手把手教大家做“TITE-BOIN”设计
- 迎角|高速直升机的旋翼系统设计为什么比较难?复杂的涡运动了解一下
- 北京|“京黄失色”!十年最强沙尘暴为何比以往都猛一些?
