丰台区|位置不错!丰台这个共有产权房项目近期开启网申!
丰台邻居们
大家关注共有产权房来啦
预计近期将开启网申
2019.12.16日 , 北京土地市场成交了1宗共有产权住房用地 , 为丰台区吴家村梅市口路1615-761、1615-762地块R2二类居住用地 。 该地块居住建筑规模将全部用于建设共有产权住房 , 销售价格为38000元/平方米 。
最终由北京首钢二通建设投资有限公司以43.48亿元竞得 , 成交楼面地价为23356元/平方米 。 目前该地块是未网申共产房中 , 唯一一个位于五环内的项目 , 地段往往不可复制 , 其稀缺性自然不言而喻 。
目前 , 项目确定案名为“首钢金璟阳光” 。 日前 , 市住建委保障房标准与评审处召开了精装修样板间专家评审会 , 项目预计于近期开启网申 。
项目概况
项目位置:位于丰台区北部 , 卢沟桥乡吴家村 , 位于莲石东路以南 , 西临西五环约2.5KM , 东临西四环3.0KM , 交通优势明显 。
文章插图
项目四至:东至规划张仪村东九路可延至玉泉西路 , 南至规划张仪村东二路可延至梅市口路 , 西至张仪村东五路 , 北至规划张仪村东一路可延至吴家村路 。
文章插图
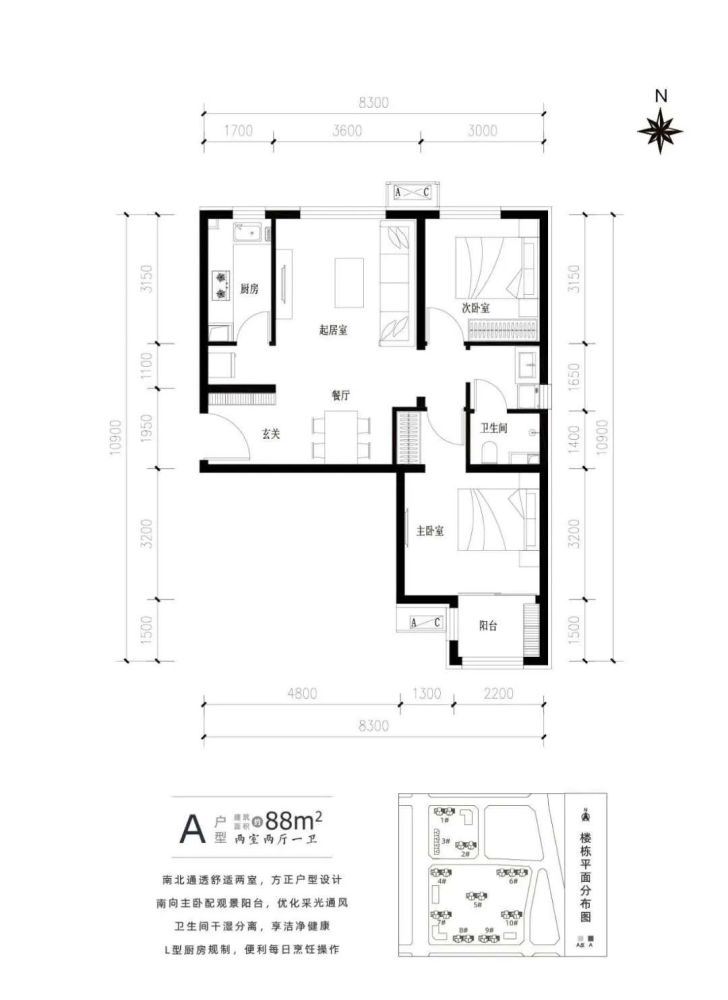
金璟阳光共10栋楼2044户 , 10-28层 , 面积约62-89 平米 , 一至三居户型 , 全装修交房 , 均价为3.8万/平米 , 总价约235万至338万 , 首付70万起 。 项目户型为62平一居、86平、88平两居 , 约88平三居 。 主力户型为86平纯南两居和88平南北向两居 。
88平南北两居 , 动静分离 , 入户门设置了玄关 , 餐客厨一体 。 主卧带阳台 , 同时设计了收纳空间 。 (户型图仅供参考)
文章插图
文章插图
文章插图
文章插图
后续申请我们会随时关注着
有消息会及时分享给大家
文章插图
来源:北京共有产权保障住房、丰台在线 , 新丰台整理 , 转载请注来源;文章内容仅为传递信息 , 不构成投资建议或政策依据 。
若信息有误 , 请以官方为准;若侵权 , 请联系删除 。
有突发事件在微博上@新丰台网 就有可能上头条哦!
【丰台区|位置不错!丰台这个共有产权房项目近期开启网申!】点个“在看” , 给小编“加鸡腿”!
推荐阅读
- 火星|在宇宙冲浪的火星摄影师返图!火星:拍得不错!
- 迷你香葱芝士火腿小方包,葱香浓郁,味道不错哦
- 油炸素丸的简单做法,外酥里嫩,鲜香营养,不错的家常美食
- 冬天就要吃这个菜肴,当宵夜、零食或者早餐都不错,关键家人爱吃
- 早餐给你安排好了,营养口感双面考虑,肉松面包真不错
- 推荐几道家常菜,做法简单,营养美味,请客吃饭也不错哦
- 推荐几道美味的家常菜,营养又健康,请客吃饭都不错
- 婆婆做的此道家常菜,客人吃了连连称赞,看相就很不错
- 几款经典美味的家常菜,每款都有着不错的颜色、香味、味道
- 超下饭的几道家常菜,色香味俱全,营养丰富,招待朋友不错的选择
