蓝调庄园|四环边!当红共产房终于选房!下周六开始,能否选完?
朝阳区澜悦景苑(上东郡)即将启动选房!
澜悦景苑(上东郡)共有产权住房项目将于2020年8月15日至24日进行申购家庭集中选房活动 。
选房地点:蓝调庄园蓝调国际婚礼中心三层金色大厅(北京市朝阳区金盏乡楼梓庄村)
文章插图
行车路线:
公交线路:乘坐639路至蓝调庄园公交站 , 步行约8分钟即到(蓝调庄园会议场地) 。
地铁路线:6号线草房站下车 , 距离活动地点约3.5公里 , 打车约需8分钟 。
自驾车路线:请上东五环 , 姚家园出口 , 平方桥上机场第二高速(机场方向) , 东苇路出口 , 出主路立即右转(焦沙路) , 沿路走 , 见临时红绿灯左转 , 直行约800米 , 即到蓝调庄园 。 导航直接搜索“蓝调庄园”即可 。
澜悦景苑
销售均价:含全装修费用43000元/建筑平方米
(根据具体楼层、朝向、位置等因素在±5%的范围内调整销售价格)
个人产权比例:65%
房源套数:本项目共17栋楼 , 总套数1442套
其中三居室872套(建筑面积约89平方米)
两居室564套(建筑面积约80平方米)
一居室6套(建筑面积约57平方米)
户型图如下:
A1(A1反)户型
【蓝调庄园|四环边!当红共产房终于选房!下周六开始,能否选完?】
文章插图
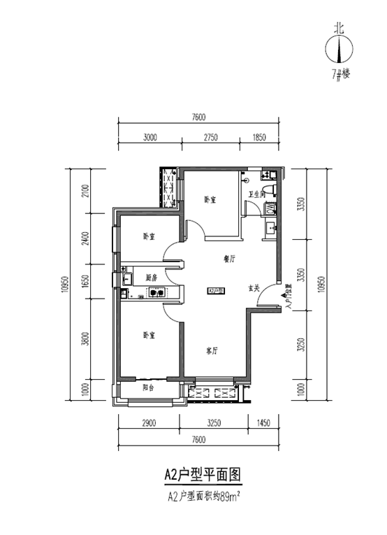
A2户型
文章插图
B1(B1反户型)
文章插图
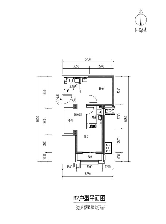
B2户型
文章插图
C1(C1反)户型
文章插图
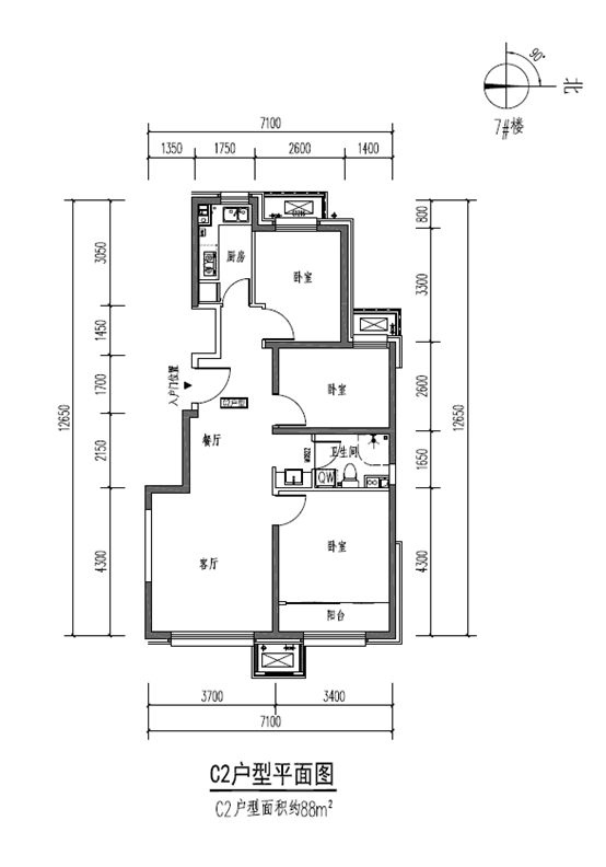
C2户型图
文章插图
选房工作安排
根据本项目销售对象及房源的不同 , 本次选房将按照非京籍家庭第一优先组、非京籍家庭第二优先组、非京籍家庭普通组、京籍家庭的组别次序进行选房 , 且依照各组别已经摇出的选房顺序号分别安排选房 。 各组别对应的房源如下:
(一)分组选房
1.面向非京籍家庭(第一优先组、第二优先组、普通组)销售的房源为389套(约占项目总房源27%) , 其中一居室2套 , 二居室153套 , 三居室234套
文章插图
2.面向京籍家庭销售的房源为1053套(约占项目总房源73%) , 其中一居室4套 , 二居室411套 , 三居室638套
文章插图
(二)选房范围及具体安排
1.由于房源数量有限 , 本次将按照一定比例通知申购家庭选房 , 具体通知号段如下:
非京籍家庭第一优先组:1号-605号;
非京籍家庭第二优先组:1号-65号;
非京籍家庭普通组:1号-1470号;
京籍家庭:1号-5792号 。
若上述家庭选房后仍有剩余房源 , 将在下一轮选房时继续通知后续申购家庭 。 各申购家庭具体到场时间请参阅《澜悦景苑申购家庭选房到场时间表》
文章插图
文章插图
文章插图
2.如本轮选房率较高 , 可能会出现房源全部售罄 , 后续家庭到场无可选房源情况 , 若出现上述情况 , 房源售罄当日 , 我司将及时通过短信、电话或“朝房啄木鸟”微信公众号通知售罄次日已通知的申购家庭无需到场 。
需递交的材料
(一)申购家庭应携带以下材料到场选房:
(1)申购家庭提交全部家庭成员身份证、结婚证(离婚证、离婚协议、法院判决书或调解书)、户口簿、有效的北京工作居住证或北京市居住证原件和复印件(一式两份) 。
(2)驻京部队现役军人和现役武警家庭成员 , 还需提供军(警)身份证原件和复印件(一式两份) 。
(3)港澳台家庭成员还需提交身份证件(香港居民身份证、澳门居民身份证、台湾居民来往大陆通行证等)、结婚证(离婚证、离婚协议、法院判决书或调解书)原件和复印件(一式两份) 。
(4)外籍家庭成员还需提交护照和护照中文译本公证、结婚证(离婚证、离婚协议、法院判决书或调解书 , 婚姻证件为境外的 , 需提供境外婚姻证件中文译本公证)原件和复印件(一式两份) 。
(5)集体户口家庭成员(包含申购人)需提供集体户口首页复印件(一式两份)并加盖公章、本人页原件和复印件(一式两份) 。 购房人及配偶(如已婚)提供的户口本中的婚姻状态应与提交的婚姻证件保持一致 。 如家庭其他成员身份证件为护照 , 需提供护照中文译本公证 。
(6)选房必须申购人本人亲自到场 , 如确因特殊原因不能到场的 , 可委托他人代为选房 。 受托人除上述第(一)条中须携带的资料外另须携带经公证过的授权委托书原件一份及受托人身份证复印件一份(关于委托具体事宜 , 可咨询方圆公证处010-65120420) 。 夫妻间代为选房不需公证 , 除上述第(一)条中携带的资料外携带授权委托书、双方身份证及结婚证 。
(二)须交纳的购房定金
完成选房后 , 购房人应同时交纳人民币100000元(壹拾万元整)定金并签订认购书 。 待资格审核完毕后 , 由工作人员通知签订正式合同 。 如购房人未能在选房当天19点前交纳足额定金 , 则视为放弃本次购房资格 。
注:选房现场只能刷购房人本人名下“银联”标记的借记卡 , 且只允许刷一张借记卡 。 为保证顺利付款 , 除定金100000元外请多存10元 , 由此给您带来的不便敬请谅解 。 现场不收取现金、支票及存折 , 定金计入购房款 。
特别注意
1、请按时到场选房
申购家庭应按选房到场时间表中通知的选房开始时间提前30分钟到场等候选房 。 选房时 , 工作人员按摇号顺序号呼叫选房人姓名 , 选房人未到场 , 视为迟到 , 由工作人员呼叫下一选房人 , 顺序选房 。 迟到的选房人在选房截止时间前到场的 , 其选房顺序轮至其到场之时正在选房的家庭组末尾 。 申购家庭到场时间安排当日有效 , 在当日选房截止时间(每日18:00)前仍未到场的申购家庭 , 视为放弃本次购房资格 。
2、所选房源不得更换
所选房源一经签字确认,不得更换、调换 。 购房家庭应与我司、政府代持机构共同签订三方购房合同 。
3、根据疫情防控需要 , 按照市、区主管部门防疫规定 , 选房现场所有人员应服从统一指挥 , 全程正确佩戴口罩 , 人员间隔距离不少于1米 。 选房现场每个申购家庭不得超过2人进入选房场地选房 , 进入场地时 , 请配合工作人员进行体温检测、手机“健康宝”出示及信息登记工作 。 凡未佩戴口罩、体温异常或正处于隔离期的人员 , 我们将谢绝进入 。
推荐阅读
- Blues蓝调时尚|30岁的蓝盈莹,蝴蝶印花连衣裙充满神秘感,青春灵动穿出别样意境
- 非遗 | 藏在湿地庄园中的小秘密~
- 美国再度失控:三名15岁少年,身背AK47突击步枪,翻进特朗普庄园
- 会唱蓝调的木木|裙子不要买太多,有这五款就够了,时髦度爆表,三木都在穿
- 会唱蓝调的木木|把“皮裤”穿出淑女感的女生,一般有这几个搭配诀窍,真实用
- CMP巴黎庄园q|为何说仙剑98之后,经典武侠游戏死绝?新仙剑bug多到惨不忍睹
- 靖宇七彩庄园盛装启幕!一眼望不到头的花海给大地披上了盛装
- Blues蓝调时尚|突然就秋天了,还没选好自己该如何穿搭的姐姐们,赶快看过来了
- 庄园牧场(01533)发行A股股票的申请获中证监审核通过
- 庄园牧场2020年上半年亏损197.51万 同比由盈转亏
