惊艳简约风,宅家也自在,51平米的小户型让人每天都元气满满( 二 )
来看看电视背景墙后面的小书房 , 两间小书房是独立的设计 , 但是设计的一样 , 简单的小书桌搭配上一个到顶的书架 , 紧凑但是实用 , 两个人工作互不打扰 。
现代户型一般都会有一到两个阳台 , 阳台可以用来晾衣服或者放置一些杂物 。 对于阳台的设计最好是根据业主本身的需求和生活习惯来进行 , 如果一个户型当中有两个阳台 , 应该要分清楚主次 , 根据功能不同进行装修设计 。 同时在装修时要综合考量阳台的承重荷载 , 不要轻易拆掉阳台的承重墙 。
文章插图
【惊艳简约风,宅家也自在,51平米的小户型让人每天都元气满满】阳台也被纳入客厅里 , 阳台上布置上一排木质座椅 , 窗子上百叶窗帘遮光 , 还有绿植搭配 , 在这看看书、晒晒太阳 , 都挺舒服惬意 。
玄关配色应与室内环境相呼应 , 在保持全屋色调统一的前提下 , 玄关区域用色不应超过三种 。 在考虑玄关配色的时候也不能忽视灯光 , 玄关尽量选择色温较低的暖光 , 还能营造出温馨惬意的氛围感 。
文章插图
站在客厅的位置可以看到玄关 , 玄关是一条狭窄的走廊过道 , 在两侧墙上做了嵌入式的收纳 , 还不占用空间 , 满足玄关收纳需求 。
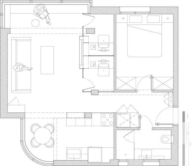
以下就是本套华清学府城小区51平米小户型房子的户型图 。
文章插图
户型图
以上就是51平米的小户型要怎么装修的相关信息了 , 不管是简约风格还是别的风格 , 只要适合自己的就是好的 , 希望大家在装修的时候 , 小编总结的这些装修技巧能够为您带去帮助 。
推荐阅读
- 简约北欧风新房完工,自然清新又舒适,朋友都说入户就被迷住了
- 去客厅化究竟有多爽?这对90后夫妻用事实打脸,新家简约且舒适
- 简约新房入住,温馨舒适又大气,入户就被迷住,11万装修费值了
- 独居的她坚持极简生活,室内处处纤尘不染,全屋简约高级很有格调
- 我家135平三居室,简约装修风格,美翻了
- 25平米的房这样装修好看100倍,现代风格惊艳众人
- 120平米的房这样装修好看100倍,美式风格惊艳众人
- 120平米、简约风,全屋温馨自在,还有一种摩登的美感
- …宅家取暖真好…
- 惊艳现代风,宅家也自在,127平米的四居室让人每天都元气满满
