时尚|142㎡&195㎡轻奢时尚样板间,高贵精致谁人不爱?
【时尚|142㎡&195㎡轻奢时尚样板间,高贵精致谁人不爱?】_原题是:142㎡&195㎡轻奢时尚样板间 , 高贵精致谁人不爱?
凤凰归处
设计师融合中西古今文化不同的意象 , 勾勒展现出两处气质截然不同又奇妙相容的“凤凰归处” 。

文章图片
璀璨珠宝 , 衬高雅
莎士比亚曾经说过:“珠宝沉默不语却比任何语言更打动人心” 。 珠宝不仅稀有 , 其中寄托着的也是极为珍贵的情感——热爱、安宁、回忆 。 本案中 , 设计师以珠宝的贵气与时尚为灵感来源 , 构建一个轻奢、精致的现代家居空间 , 让其承载更多关于家的热爱和眷恋 。

文章图片
宛如利落的切割工艺 , 设计师摒除过于繁琐的细节 , 利用大横厅的尺度优势 , 强调体块之间的穿插和组合关系 , 营造出一种干净整洁、南北迎风的写意氛围 。

文章图片

文章图片

文章图片
灰色烤漆板和具有天然花纹的大理石 , 是现代设计的经典元素 。 餐厅的设计与客厅遥相呼应 , 设计感满满的餐桌和玻璃吊灯 , 点缀四季三餐的温馨气息 。 作为点睛的墨绿色的家具 , 就如首饰主石旁的不可或缺的衬托 , 使得空间高贵精致感油然而生 。

文章图片

文章图片

文章图片
延续动区的设计思路 , 设计师在卧室同样采用明快的现代设计语言 , 透过面块和粗细不一的线条展现“珠宝”各个切面的独特之处:精致、庄重、浪漫 。 运用“轻奢代名词”的黄铜元素 , 加入透明的衣柜门、艺术摆件等细节处理 , 描绘出时尚优雅的生活蓝图 。

文章图片

文章图片

文章图片

文章图片
值得一提的是 , 142户型的全屋的空间选材大多具有出色的纹路和肌理 , 借用块面和艺术绘画作品的笔触 , 立面的构造线条颇具对比度和记忆点 , 尽力贴近名贵珠宝所展现的线条和色泽 , 处处都是高度艺术化的点题 。

文章图片
对称大美 , 见风华
相比于142户型 , 195户型更加舒展大气 。 设计师汲取中式传统庄重的元素与形体比例的基础上 , 解读当地独有的社会历史文脉 。

文章图片
凸显仪式感和尊贵感的超长双横厅空间 , 奢华的尺度是本案重要的空间亮点 。 捕捉到这个优势 , 设计师强调中式审美特点之一:对称性 。 以过道为中轴 , 客厅、办公区、餐厅、西式吧台安然落座 , 确保整体视野广阔 , 空间方寸毫不浪费且功能极为融合 。

文章图片

文章图片

文章图片

文章图片

文章图片
通排的柜体带来稳重的视觉效果 , 既作为生活品位的展示 , 又确保收纳的井然有序;而朱红色作为跳色则带有几分俏皮和明媚 , 与带有东方符号的家具搭配 , 中和过分的厚重感 , 增添一丝时尚感和东方意蕴 。

文章图片

文章图片
卧室的细节处理也颇具巧思 。 主卧套房中 , 设计师为男女主人分别划定了独立使用的衣帽间 , 主卫采用双台盆的设计 , 继续强调主人生活的仪式感和尊贵感 , 体现出主卧豪华的配置 。 通过块面整体的形体分割的手法 , 为立面或隔断刻画上装饰性线条 , 搭配延伸而来朱红色 , 东方式雅致风华之美不言而喻 。

文章图片

文章图片

文章图片

文章图片

文章图片

文章图片
被中式之美包裹的家居空间 , 散发着落落大方、温文尔雅的雍容气度 , 让人联想到传统文化中的百鸟之王 。 它仿佛无言中召唤远方的家人 , 在此乐享安宁、被浪漫气息熏染的生活闪光之处 , 静候翩翩而来繁华 。

文章图片

文章图片
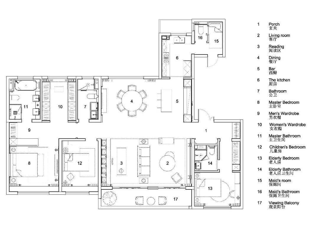
图纸呈现

文章图片
142户型/平面布置图

文章图片
195户型/平面布置图
推荐阅读
- 马铃薯|142秒|不负春光备耕忙 青岛十万亩马铃薯开始播种
- 年夜饭,给家人做一道“缠缠绵绵”简单时尚,新手小白也能露一手
- 首届西部服装展览会成都开幕 6大主题展区时尚来袭
- 杂志|可持续时尚专辑| 总第21期应用知识型时尚杂志《冷芸时尚圈》新鲜出炉!还不快来一睹为快?
- 全网|葛天未来感大片曝光惊艳全网 造型时尚气质高级
- 张宇|又一时尚女魔头离职!vogue张宇无预警结束16年任期,昨天还出席活动
- 58㎡小户型优雅时尚,全开放式格局,卧室半墙做隔断,真敞亮!
- 时尚教母张宇离职,不能安排明星上封面,会像苏芒一样人走茶凉吗
- 中国新闻网|波音737MAX被批准复航 空难遇难者家属:为时尚早
- 杨幂|电影盛典好神秘!杨幂刘诗诗罕见合体,王一博时尚腿长两米八
