北京|打破秩序,积极创新——BBT北京总部办公空间
文章插图
【北京|打破秩序,积极创新——BBT北京总部办公空间】在工作与私人生活密不可分、日益交织的时代 , 无论对员工还是对企业而言 , 办公室已不仅是容纳桌椅的房间 , 而是承载着优化员工体验、提升工作效率、传达企业形象的重要场所 。
在本案中 , BBT集团希望此次设计能够契合企业大胆创新、活力开放的精神 , 同时满足员工的需求与喜好 , 并且为前来参观及签约的客户展现企业实力 。 inDeco以企业的需求为核心 , 为其位于北京万利中心的办公空间进行了创造性的设计 。
设计理念>
对不断追求创新的企业而言 , 传统清晰分区的空间布局已不再能满足企业发展的需求 , 在本案中 , inDeco希望打破原有空间构成 , 利用内建筑的手法 , 在空间内重塑空间 , 并以此为载体 , 创造出一个流动包容、叠合联结的全新工作场所 。
空间设计>
文章插图
从主入口进入建筑的第一个场景内 , inDeco打破空间秩序 , 运用“在房子中做建筑”的思维 , 斜向插入一个贯通上下的盒子空间 , 并以楼梯串联起一二层的开放办公、独立办公、休闲、交通、会议等不同功能 , 呈现出疏密相见的空间对比与节奏 。
文章插图
虚实叠加的建筑体块交错突出 , 明黄与中灰的色调构成线与面的碰撞 , 全新的空间序列让原本平淡无味的办公场所产生了丰富的视觉体验 。
文章插图
悬挑而出的二层平台与楼梯半围合出一个既独立又开阔的小型休闲区 , 当上下层的人们在交通线路中相遇 , 他们可以就近坐下来交谈片刻 , 在这里 , 是洽谈 , 是休闲 , 是工作 , 是社交 , 是各种可能性的场所 。
文章插图
盒子内部是一个可容纳20-30人的培训空间 , inDeco用鲜亮的明黄色传达BBT员工年轻和创新的特性 。 墙壁铺设大块面的背漆玻璃 , 方便讲师或学员随时分享知识与经验 。
文章插图
为员工提供一个舒适、放松的办公体验 , 是BBT对其新办公空间的一个重要需求 , 没有什么能比充足的阳光和开阔的视野更能帮助人从压力中逃离了 。 在整栋建筑的外立面 , 大面积的玻璃幕墙有效提升了建筑的通透性 , 增强了内与外的对话 , 办公场所秩序感与自然环境的自由感由此模糊了边界 。
当阳光的路径在室内留下痕迹 , BBT的员工将在此享受一段宁静放空的午后时光 。
文章插图
推倒传统办公室内的层层隔断 , inDeco以开放式的设计让整个工位区成为一个通畅流动的工作空间 , BBT的员工们可以在此积极的沟通交流 , 共享资源 , 有效提高团队协作及凝聚力 。
不对原有的层高多加阻碍 , 管道及线路也以开放性的姿态展露出来 , 充分保留空间高度的同时 , 也创造出更丰富的空间层次 。
文章插图
签约是公司业务流程中最重要的一环 , 在建筑的东侧 , inDeco为此设计了专门的签约大厅 。
挑高的空间体量被充分利用 , 以充满质感的深色吊顶点缀造型灯具 , 营造签约时的仪式感 。 通透的落地窗为室内引入充足的自然光线 , 创造出愉悦的签约体验 。
文章插图
在BBT公司内 , 就餐不只是匆匆忙忙的饱腹而已 , 无论是三五成群的餐区 , 还是拥有绝佳视野的临窗吧台 , 差异化的场景给每位就餐人员提供了多重选择 。
inDeco对办公方式的探索从来没有停歇 , 在为BBT集团的办公空间设计中 , 我们深度挖掘企业的需求及员工对办公空间的喜好 , 并将之完美融合 , 为BBT打造了一处既标志着其身份属性 , 又体现最佳工作环境的办公空间 。
文章插图
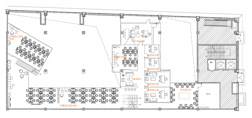
一层平面图
文章插图
二层平面图
本次项目主要信息:
项目名称:BBT北京总部办公空间
设计方:inDeco 领筑智造
完工时间:2018年
项目地址:北京万利中心一层
建筑面积:1600㎡
主要材料:地毯 , 木地板 , 彩色乳胶漆 , 木饰面 , 背漆玻璃等
设计团队:华北区设计部
项目管理团队:李想 , 杜毅
-END-
推荐阅读
- 甲状腺疾病|甲状腺疾病患者可以接种新冠疫苗吗?北京疾控释疑
- 北京疾控|北京疾控:甲状腺疾病患者新冠疫苗预防接种注意这些事
- 北京|北京沙尘暴的空气污染远超你的想象,它有八种方式伤害你的健康!
- 航空航天|医学和航空航天跨专业碰撞,胡盛寿院士团队打破pVAD技术海外垄断
- 四川|解码四川科技丨打破国外垄断!这项技术每年救治上万名甲状腺癌患者
- 诺如病毒|【北京疾控提醒您】开学季!如何应对诺如病毒!
- 北京|“京黄失色”!十年最强沙尘暴为何比以往都猛一些?
- 沙尘暴|北京遭遇沙尘暴天空出现蓝太阳?网友称犹如在火星上看!专家解读
- 太钢精带公司|0.015毫米!中国打破世界纪录,800次实验没白费
- 分享老北京炸酱面最正宗的做法,不出门就能吃到北京美食,太美味
