厨房|「局部精致」已成90后家装新趋势, 小户型大设计, 为喜好买单, 养娃也精致!
_原题是:「局部精致」已成90后家装新趋势, 小户型大设计, 为喜好买单, 养娃也精致!

文章图片
精致家装攻略
集颜值、功能、科技于一身的小家
对现在的80、90后来说 , 装修这件事早已经过了装修队说啥就是啥的年代 , 大部分人每每看到好的设计、好的爆改案例 , 都会忍不住幻想「如果我家也这样精致的话...」

文章图片
纵使房子再小 , 也愿意请设计师来设计 , 还会适当地提出几个「简单」的要求:
能不能做开放式厨房 , 最好有中岛+用餐区;
主卧容得下休闲区吗?得再有个衣帽间呀;
想要收纳空间多一些 , 我家人多东西多;
卫生间得装智能马桶哈 , 浴缸也可以放吧?
...
想法是真的很精致 , 但碰上奇葩户型、坑爹实用面积 , 很多方案难免会出现不合理的地方 , 顾此失彼 。

文章图片
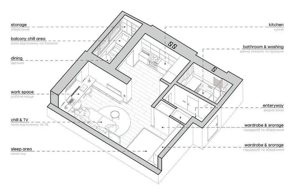
△五脏俱全的 36㎡一居室
比如开放式厨房 , 看上去简洁高级 , 但实际使用起来 , 油烟大不大先不说 , 收纳锅碗瓢盆的空间就少了一大半——毕竟你比人家封闭厨房少了两堵墙呢 , 可装橱柜的空间当然不够了!

文章图片
有时候为了能「挤出」一块用餐区 , 还会把阳台封闭起来用作餐厅 。 合理缩短动线 , 做好饭扭头就可以端上桌 , 一边看风景一边享受美食 。

文章图片
这样的设计本来是很巧妙的 , 但生活情调给足了 , 偏又引发另一种尴尬 ▽

文章图片
很多时候格局不能改 , 就只能把卧室与客厅布置在一块儿 , 中间连个帘子也不拉 , 成了真正的「开放式卧室」 。 这可逼死了懒癌 , 每天起床必须得收拾成和没睡过觉一样的整洁 。
不然自己坐在沙发上转头一瞧乱糟糟的「灾难现场」 , 也着实难受 。

文章图片
卫生间是需求最多也最难搞的 。 在不足 4㎡ 的面积里 ,通常业主都幻想着能有干净整洁的台盆、收纳所有瓶瓶罐罐牙刷纸巾洗手液的收纳柜(隐形的最好) , 还得塞下一只浴缸...
面积再小一点的 , 做不了干湿分离 , 墙角、毛巾经常发霉不说 , 普通的马桶也更容易滋生细菌 。 每天早上全家老小排队等位的场景也着实闹心!

文章图片
为了解决这些个问题 , 年轻业主们后期往往需要投入更多金钱去局改、购置更合适的家具、智能电器 , 才能成就实用性与高级感并存的精致小家 。
毕竟自己花钱买的房子 , 咬着牙也要打造成住的舒坦、颜值过硬的美宅!

文章图片
活的精致 , 还真是现在年轻人主流的生活态度 。
01
当代精致青年1㎡也不放过
24号晚上 , 躺平设计家x天猫家装季做了一次关于年轻人装修的话题直播 。
节目组特地请来三位设计大咖做案例分享 , 嘉宾阵容加上主办方过硬实力 , 简直是王炸组合!一起君整场看完 , 也觉得干货满满 。

文章图片
△直播实况
先来介绍一下到场嘉宾 , 左边这位是设计才女 , 颜值超高的张烨 , 她是伦敦威斯敏斯特大学建筑学硕士、上海张燁建筑设计、伦敦张烨建筑事务所创始人 。
坐在她旁边的精致青年是恒田设计研究所、恒田家家庭设计事务研究组创始人 , 王恒 。

文章图片
△设计师张烨 左 王恒 右
第三位嘉宾虽然不是室内设计师 , 但他的工作性质决定了他极高的审美 , 他就是来自北京的flypig林嘉澍 , 不光身为北京灵光闪现科技有限公司 CEO , 同时也身兼Fork、一闪 OneTake、NOMO、Protake多家公司创始人 。

文章图片
△CEO、博主 林嘉澍
大家都知道金九银十是家装旺季 , 这次直播也是赶在这个档口 , 针对对生活有要求的精致青年和对设计很执着的家装爱好者群体 , 做一次深度的干货分享 。
什么?你错过了?没关系 , 重要的知识点我全拿小本本帮你记着了!
02
局部精致 & 1㎡都不放过

文章图片
△王恒设计作品
对现在年轻人来说 , 换个电视柜、小边几、买个咖啡机 , 就是在给家装修了 。 不喜欢某个房间 , 从墙纸到地板彻底来个改造 , 即便是只有局部精致也乐意 , 真就不怕麻烦 。
重点是给家里来点不一样的感觉 , 不想随大流 。

文章图片
就拿卧室来说 , 除了床和衣柜 , 你还能想到啥?
在原本空无一物的窗边 , 一个衣架、一只懒人沙发 , 在铺块圆毯 , 就成了舒适放松的休闲区 。 靓丽的颜色活力十足 , 整个空间都充实起来 。 这样的设计也给了业主一个大大的惊喜!不得不佩服设计师对业主生活习惯的洞察力 。

文章图片
喜欢下厨的业主还会对厨房装修有很多想法 , 既想要齐全的功能、又不想一个人被拘束在封闭空间里 , 真不知道该如何去实现 。
在这套 90后律师的单身公寓里 ,为了满足屋主的愿望 , 王恒团队曾设计了好几版方案 , 做出了很大调整 。

文章图片
最终 , 通过对格局的彻底改造 , 将开放式厨房、与水吧结合的收纳区置于房间正中 , 并将周围拓展出一体式收纳柜 , 不是简单意义上的墙面 。
原本狭小、采光差的的厨房 , 改造后成了面积大两倍的开放空间!功能性还一点儿没有缺失 , 橱柜、台面、吊灯的颜色和类型都很搭 , 形成简约的高级感 。

文章图片
业主通过对厨电品牌和厨具的选择 , 立马展现出自己独特品味 , 用镜面、灯带烘托气氛的手法 , 更有一种别样精致感 。

文章图片
猜猜看另一块会让年轻人格外重视的空间是哪里?没错 , 卫生间!
作为家里使用频次第二高的空间 , 向来是 90后花钱装修的热门区域 。 每次去朋友家做客 , 或者看完博主晒家 , 看到好的设计转身就想搬回自家厕所!

文章图片
对这块巴掌大的地儿也提出很多装修需求 。
最招人嫌的可能就是家里的马桶太普通、不够智能了 , 前两年中国大妈搬空日本马桶盖的事儿余波未平 , 国内洁具界也是差不多都升级了智能马桶产品 。

文章图片
昨天直播时主持人准备了一张话题卡:「25+时尚博主的55平新家装修」 , 这个题卡针对小户型、收纳、颜值来的 , 简直太有代表性 , 几乎关注家装的年轻装修粉都曾看过类似的案例 。
也就引出了另一个年轻人装修的态度:1㎡都不放过 。

文章图片
1㎡才多大一块地儿 , 这么讲究会不会太苛刻啦?
在设计师王恒看来 , 1㎡在空间中其实代表了 3m3 , 它可容纳的功能性要求越来越高 , 在室内设计里非常重要的一块立体空间 。
例如这套 35㎡ 的小户型案例 , 居然「安排」得下 6 口人 , 把家里空间利用到极致 , 上到屋顶下到沙发卡座 , 真真是每 1㎡都不浪费!

文章图片
我必须要夸一夸设计师对收纳空间的娴熟拓展:门口玄关定制的多功能卡座 , 伸开就是一张床 , 底下还带活动柜体 , 收纳、待客两不误 , 造型简约 , 满满日系风 。

文章图片
收纳空间多多益善 , 慢慢你收纳技巧就提升了 。 良好生活习惯就自然养成 。

文章图片
△王恒设计作品
03
精致青年养娃不随便

文章图片
△儿童房 张烨
现在的80、90后家长不光会为自己打算 , 给孩子的房间装修也是格外用心 。
这一点 , 从设计师张烨分享的儿童房的设计中就能看出 , 明快色调、多功能游乐区 , 整个儿刷新了我们对以往儿童房的认识 。

文章图片

文章图片
这间房是给三胞胎设计的 , 天哪!一个娃就够头疼了 , 设计师居然能安排得了三个?!
她的秘诀就是空间的合理分区 , 除了上下床、收纳衣服的楼梯柜之外 , 还有很多拼接的积木元素 , 黑板折下来就变成写字桌 , 墙上的灵活收纳架颜值也太高了吧!

文章图片
儿童房设计上会考虑的使用周期往往比较长 , 孩子在 0、3、6、12 岁不同年龄段生活需求都不太一样 。 不光材质要格外注意环保 , 布局上也要充分适应小朋友的生理成长 。
不然就会发生个子长高了床睡不下之类的尴尬情况 。

文章图片
设计师们也分享说 , 如果能尽量多的采纳孩子的意见 , 鼓励小朋友独立思考 , 设计自己的房间格局 , 房间的意义就更特别了 。

文章图片
04
精致青年为喜好买单

文章图片
△张烨设计作品
说到年轻人的生活状态 , 有个词叫「精致穷」 , 表达的特别到位 。 博主 flypig 却把它解读成「穷精致」 , 原因是年轻人要么租房 , 要么只能买小户型 , 但是却肯倾尽所有在装修、买家具上面 。
宁可花一万块买把设计师椅子 , 也不要长辈口中的皮实、用10年的过时家具 。

文章图片
据他说 , 很多微博粉丝虽然赚的不多 , 但是选择居家用品绝不含糊 , 颜值第一!例如购买某森吸尘器、复古收音机等都要看好半天测评 , 做足功课选有品质的东西 , 这就是标准的「穷精致」 。

文章图片
再看设计师张烨分享的案例 , 随便一样家具灯饰都是小众设计师款 , 浓烈渐变色墙面也掩盖不了它们的锋芒 。
卧室与客厅仅用水磨石台面做分隔 , 色调也由暖转冷 , 与轻奢风天鹅绒沙发形成呼应 。

文章图片
拱形元素、开放式厨房、水磨石 , 随便一样都是Ins上最火的设计潮流 , 也只有年轻的业主才能全盘接受这样的大胆组合 。 关键是 , 这样组合在一起 , 你的家绝对不撞脸!

文章图片
另一方面 , 「精致穷」对家电选择也很苛刻 , 颜值必须高、功能一定要好用 , 操作不够便捷的可能就被无情pass了 。
事实证明 , 智能家居进化这么多年 , 功能和使用感已经很人性化了 , 是真的可以为你的生活「加分」、让你回到家可以卸下疲惫 , 彻底放松的优秀选项 。

文章图片
这场直播持续了近1个小时 , 每一part都是年轻人最关心的家装话题 , 足以引发行业内做一些深入的设计思考 。
而所谓的精致青年们 , 其实也足以代表主流家装家居消费者 , 对家里每 1㎡ 空间都能好好利用 , 才有更多时间去拥抱生活 , 热爱你的热爱 。
05
设计师造星
除了用直播的方式引发行业思考 , 躺平设计家x天猫家装季还乐意给年轻的设计师群体更多曝光的机会 。
比如这次 , 就邀请 6 位设计师 , 将他们的方案做成海报 , 覆盖 6 种主流家居风格 , 利用更好的平台去推广精致生活的设计理念 。
李蓓作品 极简 ▽

文章图片
刘鑫 工业风▽
【厨房|「局部精致」已成90后家装新趋势, 小户型大设计, 为喜好买单, 养娃也精致!】
文章图片
彭宁波 轻奢▽

文章图片
徐彦旻 北欧 ▽

文章图片
杨易 INS风 ▽

文章图片
王晓炼 新中式 ▽

文章图片

文章图片

文章图片
每套作品都有各自的设计亮点 , 或清新活泼或简约高级 。 不得不说 , 躺平设计家x天猫家装季的这波操作是诚意十足 。
将默默耕耘、躲在幕后的年轻设计师们推向前台 , 链接到更多想要改版自己家的业主 , 未来也期待更多的设计师关注、参与其中 。
本文由一起设计原创撰写
▼点击阅读原文 , 进入 一起设计网
推荐阅读
- 3月必吃的6种「春菜」,降压减脂又刮油,错过又要等一年
- 我不允许你还没吃过这么鲜甜脆嫩的「 油焖春笋 」一口吃掉整个
- 我不允许你还没吃过这么鲜甜脆嫩的「 油焖春笋 」
- 四大美食酱,中华美食的“灵魂”,第一种厨房必备,老干妈落榜
- 【养生厨房】今日菜谱——《草头排骨》
- 强冷空气|较强冷空气确定,第二股沙尘马上杀到?权威预报:北方局部不排除
- 倒春寒|倒春寒将出征南方,广东等是重点!权威预报:降温很大局部近0度
- 「浮世绘」可口的“油炒饭”
- 好吃不贵的冰淇淋有哪些?
- 一上桌就被抢光的「话梅排骨」,酸甜可口,好吃到吮手指
