选用|选用的方式,将三居室房屋交给装修公司,只花了13万元
现在装修更流行简单化装修,变繁复的设计为纯粹的简单,用自然的方式去诠释家装。这套绿地海外滩的三居室案例采用现代风的设计,搭配上简约舒适的家具软装,128平米的居室只用了13万的装修预算,让人置身其中感受到一种轻松自然的生活。
业主要求:要求储物空间,整体干净,整洁设计说明:一位男业主,喜欢简洁大方,偏向于冷色系,地面采用灰色系,墙面采用灰绿色,衣柜选用白色和黑胡桃木来结合,沙发选用灰色系,抱枕,单椅选择暖色系,深浅搭配,冷暖呼应,使整个空间充满温度。
客厅是家中的中心区域,平时主要用来接待客人、放松、娱乐、进餐等。因此往往被主人列为重中之重,精心设计、精选材料,以充分体现主人的品位和意境。客厅装修的原则是既要实用,也要美观。

文章图片
现代风格让人感觉具有时尚感

文章图片
业主是一名男性,喜欢简洁大方
卧室装修的要求较其他空间会更加严格,因为卧室是人们休息的地方,为了保证你有个好睡眠,卧室必须具备隔音的条件,而且卧室的美观度同样影响主人的心情,所以一个美观私密的卧室是非常重要的。

文章图片
深浅搭配,冷暖呼应,色彩鲜明
餐厅的装修中灯光和餐桌是重点,首先我们要看的是你家的饮食习惯,是偏中式还是偏西式。中式的灯光要饱和但不要刺眼,西式的灯光要温和但不要明亮,餐桌的选择也会影响我们的食欲,所以我们要根据家人的喜好进行挑选。

文章图片
餐厅一贯的简约,加上十分有设计感的灯具

文章图片
性格比较沉稳,所以偏向于冷色系
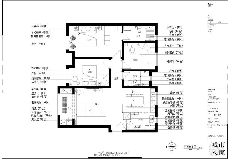
以下就是本套绿地海外滩小区128平米三居室房子的户型图。

文章图片
128平现代三简约风三居室户型图
【 选用|选用的方式,将三居室房屋交给装修公司,只花了13万元】数月锤炼终成精彩,经过时间洗练过的现代风,由此开启它在这套128平米居室里的演绎,绿地海外滩的这套案例每一处细节的处理都彰显着主人的爱好,记录着生活中独有的小确幸。如果你也喜欢这套三居室的装修,评论区告诉我吧。
推荐阅读
- 精选美食:香辣香干肉片,白菜丸子粉丝汤,羊肉山药汤,瘦肉海带
- 精选几道好吃的宴菜,五香排骨,麻辣烫,在家请客吃饭非常有面子
- 精选整理42款菜肴推荐,做法简单,鲜香入味下酒下饭,越吃越香
- 开胃、解馋的下饭菜,下酒又好香,家宴、百吃不厌待客必选
- 健康又快捷的早餐首选,中式汉堡,自己做也很好吃
- 精选几道适合春天吃的家常菜,营养滋补开胃下饭,餐桌上特受欢迎
- 乙肝|乙肝药物筛选,日本科学家发现,其他步骤靶点ponesimod
- 中国载人航天|中国载人航天科普展亮相中国科技馆,观众可体验航天员选拔训练
- 美食优选:洋葱回锅肉,香辣酱汁焖豆腐,蒜爆羊肉,肉末烧茄子的做法
- 美食优选:酱香茶树菇,小炒蟹味菇,荷兰豆炒五花肉,青椒蒜苗炒腊肉
