悬挑|“悬挑的城市橱窗” |孔雀城柏悦府—示范区接待中心
城市 , 是居者的另一个家 , 不断赋予其更多属于未来的生活方式 。 示范区接待中心位于固安中央公园以南 , 设计的初衷旨在通过现代极简的设计手法创造出富有都市文化的形式美感和人文内涵 。
设计将营造具有互动性的城市界面作为切入点 , 将现代的建筑语言的转化为富有独特标识感的“城市橱窗” 。
▼ 建筑外观
文章插图
文章插图
场所|城市与边界
Site– City and Boundary
建筑的二层体量沿城市街角方向形成8米的巨大的悬挑 , 同时首层后退引入镜面水景观 , 形成可供访客休憩的城市“灰空间”;沿主入口方向 , 二层体量略向后退以凸显首层形体 , 以营造符合访客尺度的主入口 。 建筑首层与二层的错动叠合 , 一气呵成 , 形成有着多重感官体验的城市街角空间 , 建筑与城市互相渗透 , 丰富了城市边界 。
▼ 街角鸟瞰
文章插图
▼ 面向城市的巨型悬挑
文章插图
▼ 首层后退 , 二层悬挑后形成的城市灰空间
文章插图
▼ 首层主入口空间
文章插图
▼ 首层主入口空间
文章插图
空间造型|实体与虚空
Space and Facade – Entity and Void
建筑的两层体量通过叠合错动 , 单向悬挑形成了富有视觉张力的建筑形体 。 首层体量在立面设计上更接近实体化 , 通过富有韵律和节奏变化的楔形开口营造出稳定的实体体量;二层则通过大面积玻璃的运用形成虚空的体量 , 同时结合铝板造型勾勒出轻盈悬浮的建筑形象 。 通透的悬挑体量在夜间城市环境中 , 仿佛化身未来生活的城市橱窗 , 展示着未来的城市生活 。
▼ 首二层错动形成的形体对比
文章插图
▼ 街角商业人视
文章插图
▼ 沿街主立面
文章插图
室内空间
Interior Space
访客通过迎接性的楔形内凹空间进入建筑内部 。 入口空间区别于以往的平铺直叙直接衔接展厅 , 转而通过曲折的路径依次通过区域沙盘 , 主题雕塑等暗环境区域 , 再进入主展示区 。 主展示区由入口门厅的一层空间过渡为二层通高空间 , 同时屋顶天窗及侧面条窗的光线渗透进来 , 给访客带来了曲径通幽后的豁然开朗 。 主展示区结合使用功能布置成开放空间 , 阳光从顶部天窗和侧面渗透进来 , 访客置身其中 , 感受着全天的光影变化与怡然自得 。
建筑二层的出挑部分作为公共会客室 , 结合全玻璃幕墙 , 可以无界地观看到项目的逐步完善以及整个城市的发展变迁 。
▼室内设计意向
文章插图
▼室内设计意向
文章插图
▼入口引导空间
文章插图
▼ 核心展厅空间
文章插图
▼二层城市会客厅
文章插图
文章插图
材料与细部
MaterialandDetail
建筑的选材同样遵从现代极简的设计原则 , 将石材铝板、玻璃有机结合于纯粹的两层体量之中 。 首层形体采用“蓝眼睛”石材 , 并结合细致的金属收口及精致划分 , 使首层形体成为稳定又不失细部的基座;二层运用超白玻璃全玻璃幕墙 , 结合银色蜂窝铝板 , 勾勒出通透且充满科技感的极简形象 。 首二层体量上的错动叠合 , 结合材料的轻与重、虚与实的对比 , 充分表现出极简现代建筑所带来的视觉张力 。
▼首二层材料的对比
文章插图
▼定制金属格栅
文章插图
▼挺拔的金属线条收口
文章插图
从一座城市的建筑中 , 能读懂它的文化和生活 。 实体基座托起二层的空灵 , 立于镜面水景之中 , 如同未来生活的容器漂浮于繁华之间 。 接待中心极简舒展的建筑风格 , 折射出现代城市生活的独特魅力:公共开敞 , 却又内敛聚合;冷峻空灵 , 却又温润有度;在未来与当下的碰撞中 , 描绘出独特的人居精神 。
概念生成
Diagram
文章插图
文章插图
文章插图
技术图纸
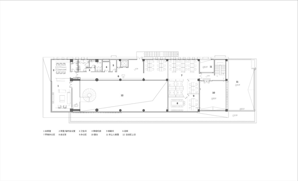
▼平面图 , Plan
文章插图
首层平面图
文章插图
二层平面图
▼立面图 , Facade
文章插图
东立面图
文章插图
▼剖面图 , Section
文章插图
▼细部 , Detail
文章插图
项目名称:孔雀城柏悦府 — 示范区接待中心
项目位置:河北固安中央公园以南
建筑设计:goa大象设计
项目设计 & 完成年份:2020.05
设计团队:张欲晓、陈浩、黄培英、翟国羽、何杨
建筑面积:1600㎡
景观设计:深圳奥雅设计股份有限公司
景观施工:北京星河园林景观工程有限公司
室内设计:上海JSD建筑设计咨询有限公司
室内施工:北京丽贝亚建筑装饰工程有限公司
甲方团队:王澎、丁佳、胡毅、李婉璐、赵泽耀
建筑材料:天然石材、超白玻璃、蜂窝铝板
【悬挑|“悬挑的城市橱窗” |孔雀城柏悦府—示范区接待中心】建筑摄影:北京锐景摄影有限公司
推荐阅读
- 养老金|2021年上半年办理退休,养老金核算的这些知识要把握
- 量化|量化大师麦教授:美好的不确定性
- 浪胃仙|泡泡龙的离世给所有吃播提了醒,浪胃仙顺势决定“转行”,新职业认真的吗?
- 结核|再见吧,“结核君”
- 脑梗死|脑梗死和喝酒有没有关系呢?爱喝酒的朋友,应该看看
- 米歇尔·戴斯玛克特|海奥华预言的真相,地球人被带到九级文明,揭开神话背后的秘密
- 减肥也能吃的小零食,营养美味,低脂低热量,多吃也不怕!
- 1碗面粉,不加水,锅里蒸一蒸,做香甜可口的发糕,比蛋糕还香
- 扇贝最好吃的做法,适合冬日里吃,做法简单好吃不腻,家人超爱吃
- 七种颜色的布丁吃过没有?软糯爽口,Q弹软糯
