户型|这是我见过最小的户型,全屋不到30平米,完工后火遍全小区
随着房价的上涨,越来越多人买房时都选择小户型新房!其一小户型面积不大,所需的装修和购房预算少,其次小户型内部空间小,生活中清洁全屋花费的时间也少。但通常我们印象中的小户型也有50~60平米左右,那么全屋不到30平米的户型你见过吗?
30平米是什么概念呢?或许对一些大点的户型而言,30平米就是一个阳台的大小,但就是这样小的一套新房,完工后却火遍了整个小区!全屋小巧精致,样样俱全堪称小户型设计的“典范”。

文章图片
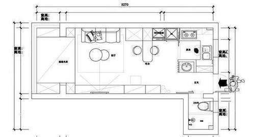
如图所示,从入户到阳台的进深只有8.2m左右,但却依次布置了厨房、吧台、客厅及卧室多个使用空间。屋主将厨房和卫生间布置在了入户两侧,内部空间利用到了极致,装修非常的大气美观!下面一起来看看实景照片吧。
入户玄关

文章图片
入户玄关是进入家里的第一空间,所以收纳和换鞋区是必不可少的!本案例玄关的储物区设计在右侧,鞋柜采用嵌入式设计,上部是封闭式柜门储物区底部留空设计置物架,既美化了空间又留宽了过道,以白色为主的色彩搭配也增添了几分明亮感。

文章图片
【 户型|这是我见过最小的户型,全屋不到30平米,完工后火遍全小区】顺着玄关往里走,整个房间的布局一览无遗!正对入户左侧是电视墙和餐边柜,右侧依次设计了吧台、沙发区和卧室区。小巧的空间得到了充分利用,虽然布局紧凑,但各种使用功能齐全,能满足基本的生活所需。

文章图片
来看右侧的吧台和储物柜,吧台是折叠式设计,平时可以隐藏到柜体内为厨房到客厅留出过道,需要时将台面放下来就能代替餐桌,一举多得!

文章图片
吧台右侧有一个小巧的客厅,客厅装饰十分素雅,以白色为主搭配小体量的家具和平顶,让整个空间看上去更显宽敞!客厅背景墙造型简单,墙面通刷大白墙,将通透明亮的气质体现得淋漓尽致。客厅电视柜和沙发中间铺放了地毯,尽显小清新风格。

文章图片
厨房内布局也很简洁,墙面地面通铺白色瓷砖,搭配瓷白色吊柜和橱柜,将简约风整洁休闲的气质展露无余!虽然厨房空间小,但洗切炒的动线布局依然明朗,L形吊柜和橱柜也带来了充足的收纳区,让日常使用更加方便。

文章图片

文章图片
客厅外面的区域布置成了休息室,由于空间较小又需要同时满足收纳和使用需求!所以巧妙地用组合式榻榻米设计代替床+衣柜,榻榻米内部可以储物,台面又能作为休息区、娱乐区和观景区使用。这个区域临窗,平时光照充足夜晚躺在床上就能看到星空,非常的惬意。

文章图片
玄关左侧区域利用起来设计了卫生间!卫生间面积不大,为了干湿分区只能将洗手池外移到过道,旁边还特意设计了金属气息的展示架,摆放绿植、饰品简单一番点缀,让整个空间浑然天成丝毫没有突兀感。

文章图片
卫生间内部设计了淋浴房和马桶,墙地面通铺马赛克瓷砖让空间层次感倍增!蓝白相间的配色浪漫而悠闲,智能马桶+淋浴房使用非常方便。
推荐阅读
- 王者荣耀:软辅不想被嫌弃?除了不能3级辅助装以外,还有这四点
- 人间风物志|游雍和宫:有人说这是北京必打卡景点之一,但我并不觉得非去不可
- 新个体经济为啥这么"火" 分享也是一项"严肃创业"
- 反伤刺甲将调整,然后新出了一件魔抗装备,这两都完美适合赵云!
- 识别“95”号段中的“李鬼” 这些小技巧要掌握!
- 这些星座女最容易在感情里遭遇渣男,赶紧进来避避难吧!
- 知书达理,这些星座从来不出熊孩子
- 这些星座的男生是护妻小超人,嫁给他们很幸福!
- 艾泰洗车机|还在排队高价洗车?艾泰智能洗车机,小米都不敢这么玩
- 梅拉尼娅·特朗普|想拉个小手怎么这么难?美国总统特朗普又被第一夫人拒绝了
