区域|记录合肥夫妻90平婚房改造过程,清爽明亮成很多人装修范本
业主是一对青梅竹马,他们从小一起长大,这套婚房仅仅是作为两人的过渡房使用。在我们接手改造之前,其实已经做了简装,所以我们根据他们的生活习惯重新对房屋的格局做了一些调整。为了让大家更直观的了解设计作品背后的故事,给大家码了这篇改造全过程,或许能对你的装修提供一些有必要的学习经验!

文章图片
先来看看房屋的原始户型图:

文章图片
从整体上看,原始户型比较方正,但是入户却无玄关,一览无余的布局进门根本没地收纳,而且在客餐厅一体的竖厅空间里,不仅采光效果不理想,如何合理布局也是一个大难题。
当然,这些难题自然要交给我们的设计师啦!
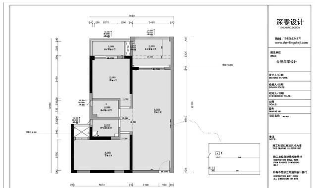
附上一张改造后的户型图

文章图片
因为户型没有太大硬伤,所以在户型上并没有做过多的改动。主要的改造部分是把连接客厅的南阳台打通,改造成了书房/梳妆台区域。
下面进入正题!装修流程来咯!
先给大家看看改造前的量房图
1、客、餐厅区域

文章图片

文章图片
2、卧室区域

文章图片

文章图片
3、阳台区域
(主卧阳台)

文章图片
(客厅阳台)

文章图片
4、厨房区域

文章图片
5、卫生间区域

文章图片
改造进行中
因为业主之前做了简装,所以我们第一步就是把该拆的墙面、地面以及门窗拆掉。
水电是装修的基础工程,虽然看上去比较简单,但能在很大程度上影响生活的舒适度。

文章图片

文章图片
(水电施工阶段~)
预留好相应的插座,前期水电完工后,就可以进行木工啦!
为了保证业主的收纳需求,除了传统的卧室衣柜以外,我们还在玄关、餐厅、阳台等地方特地定制了柜体,现场手工打造的柜子更能迎合整合户型的结构,将空间利用到极致!

文章图片

文章图片
虽然是拿手机拍的,但是一点都不妨碍它优秀的收纳能力。

文章图片

文章图片
我们没有在玄关与餐厅之间刻意的做分割处理,在进门的左手边做了一排白色的矮柜,而连接矮柜的那面墙也做了不同程度的收纳柜设计,衔接了餐边柜。

文章图片
餐边柜中部留空部分方便随手放置杂物,墙面六边形小瓷砖颜值也超高!用木色+白色的设计,保持基调一致。矮柜+高柜的设计,收纳能力肉眼可见的强!

文章图片
毕业照在这里!顺便还留出了冰箱的位置,解放了小厨房空间压力,连上方空间也没有浪费,用作收纳空间利用率超高!

文章图片
当然除了玄关柜和餐边柜,再来看看被改造的阳台区域柜体吧!

文章图片
油漆完工后的南阳台柜子,配色清新,收纳能力也很强!顺便还把原本的管道包在了柜子里,美观和实用性没得说!

文章图片

文章图片

文章图片
被改造后的阳台,除了满足业主平日里的办公和学习需求外,也可以被当做女主人当作一个小型的梳妆台,采光、颜值、收纳......样样精通!

文章图片
为了能够保证阳台区域既独立又统一,提升客、餐厅的采光效果,我们选择打通阳台和客厅后,全屋通铺了木地板,用了黑框折叠移门作为隔断。

文章图片
既然南阳台被改造成了书房,那么主卧的阳台自然顺势要满足基本的生活阳台需求了!
因为是传统的洗衣区+晾衣区,所以地板选择的是瓷砖。

文章图片
主卧阳台的瓦工施工中......
选择了带有几何图案的小白砖。
颜色根据阳台柜的墨绿色呼应,就像是从阳台柜上散落下来的“小可爱”一样!

文章图片

文章图片
预留出来的位置用来放置洗衣机,防止太阳暴晒。

文章图片
开放式和封闭式结合的阳台吊柜方便储物也方便随手拿取洗护用品,墙面也特地选择了比较百搭耐用的大理石瓷砖,小台盆也丰富了阳台洗衣区的功能结构。
除了阳台,厨房和卫生间也需要铺贴瓷砖~
卫生间瓦工阶段打卡:

文章图片
墙砖呼应了地砖的配色和质感,整体性超强,也提升了整个卫生间的明亮程度。
加上定制的浴室柜和镜柜,卫生间的收纳问题也能得到很好的解决!

文章图片
一字型的淋浴房用玻璃隔断隔开,干湿分离的效果真的没话说!加上黑框的设计,简约也足够大气。虽然只有一个小窗户,但是用百叶帘装饰,不仅保证了隐私,同时也提升了卫生间的采光效果。

文章图片
附上对比图,效果更直观!

文章图片
除了卫生间,厨房走的也是实用路线!

文章图片
改造前的厨房动线不是很合理,所以我们把水槽、备菜区与烹饪区调换了位置,同时增加了两组橱柜,扩大收纳面积。
【 区域|记录合肥夫妻90平婚房改造过程,清爽明亮成很多人装修范本】
文章图片
因为原始客厅是横厅,采光不好,所以除了打通阳台以外,把整个客厅的主色调定为了清新的薄荷绿,清爽又大气。特地做了分色处理的墙面,白色和薄荷绿相搭,从视觉上不仅优化了两个空间对立面,同时也让空间的层次感变得更加清晰。

文章图片
电箱太扎眼怎么办?用装饰画遮挡就完事了!

文章图片

文章图片
软装陆续进场中......

文章图片
电视背景墙一定要事先预留好电线插口哦~等电视就位,来点配饰,气质瞬间就能不一样!
沙发、单人椅、落地灯、茶几就位。

文章图片

文章图片

文章图片
卧室的改动不大,所以直接附上改造前后对比图

文章图片
温柔的床头米白色背景墙为卧室营造出了静谧且美好的居住氛围,白色的纱帘和墨绿色的天鹅绒窗帘、羽毛吊灯以及床具的选择,更为卧室增添了更多的温馨与柔软~
看完了这套90㎡北欧婚房改造过程,不知道有没有给正在发愁怎么装修的小伙伴提供一些设计灵感和参考呢?因为很多人在后台问我要客厅以及阳台的漆号,所以一点点小彩蛋,送给大家!
客厅墙面用的是立邦NN6551-4海市蜃楼

文章图片
书柜选择的是立邦NN6260-4白杨礼赞作为主色调

文章图片
中间的墙面跳色用的是立邦NN6290-2古堡色。

文章图片
推荐阅读
- |有记录以来首次!四川启动I级防汛应急响应
- 信阳|河南18个区域物流枢纽,信阳为啥占了俩?
- 河南|凯旋!河南消防跨区域增援安徽抗洪抢险任务圆满完成
- 邓超|还是如此搞笑!邓超用可擦拭的笔记录日常,阳光暴晒后全消失
- 城管|合肥开展文明养犬集中整治,市城管部门成立千人巡查队
- 旅行记录师|隐藏在山水中的丹青,水墨瑶里,一个让人上瘾的世外桃源
- 新华网|合肥:非住宅闲置存量房屋可改建为租赁住房
- 警告!|加州死亡谷记录到 54.4°C 的气温
- 记录|女子怀疑老公出轨 查开房记录结果悲催了……
- IG惨败LGD破记录!2世界冠军必淘汰一支,宝蓝笑到了S11
