中国质量万里行■化繁为简,动静交织,整洁有序的黑白理性美学
现代居所空间 , 将更注重运用构件元素及美学符号打造完美的居所品质 , 无论精致或是简约 , 都会更纯粹的体现设计师的匠心 , 将设计的思路赋予巧妙的光影 , 辗转于每个角落 , 用矛盾的色彩搭配 , 融合不同的元素 。 呈现空间和而不同的协调美感 。 更纯粹的元素 , 更纯粹的色调 , 让其自然而然的在空间里游刃有余的自由交织 , 塑造出一个静谧的专属之境 。
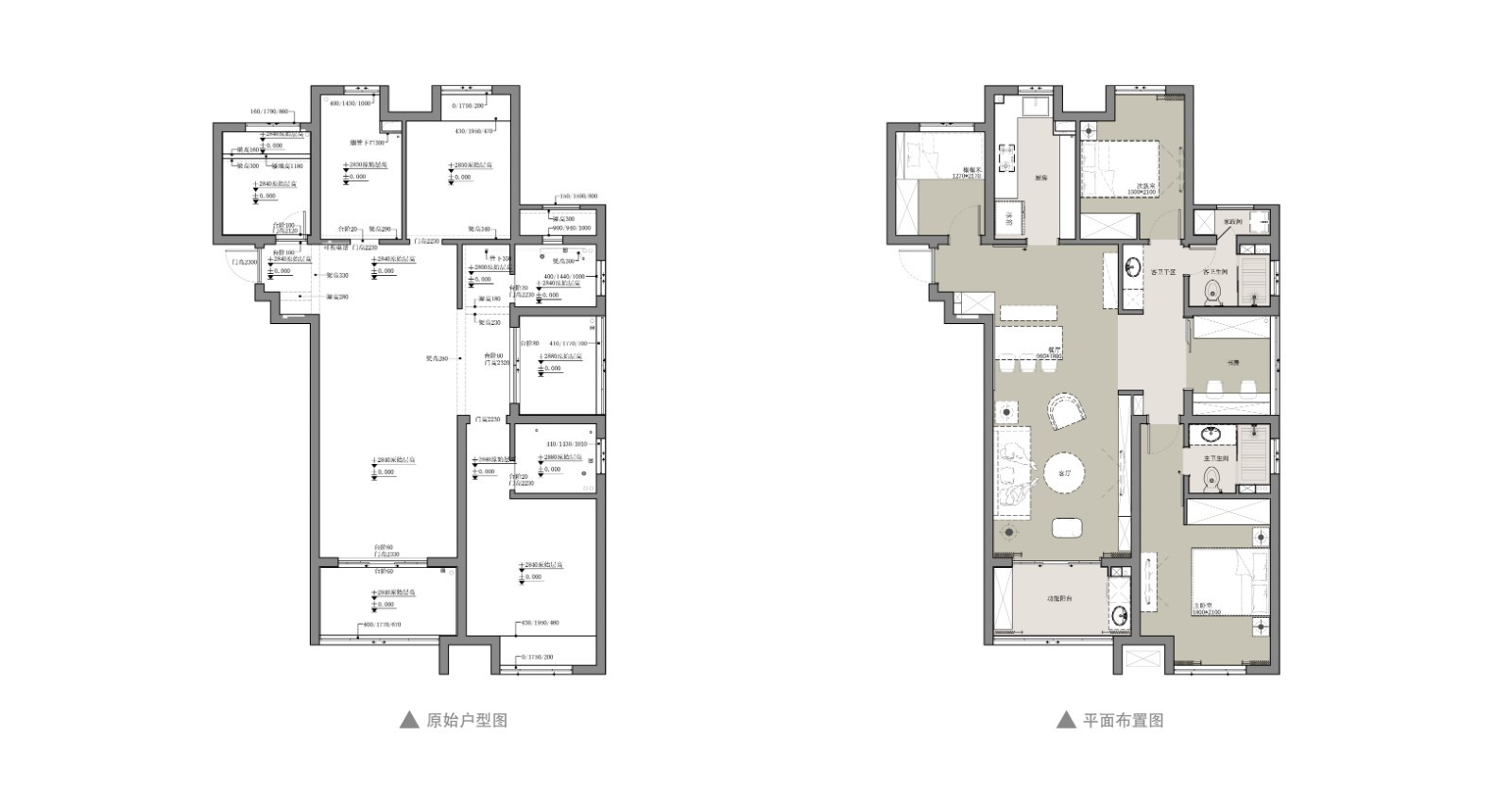
这是一间为单身男老师设计的居所 , 原始格局框架相对较规整 , 因此设计师在整体空间布局没有做过多调整 , 依旧保留了两居室两卫的格局 , 对客卧及卫生间的动线做调整 , 使卧室区域更趋于静谧 , 很好的跟客餐厅公共空间有一个动线上的区分 , 利用扩大的墙体增加了干区空间 , 尽管平时只有业主一个人居住 , 但是公卫干区的设计更好的解决了业主在客餐厅活动时的盥洗需求 , 以及未来人口增加让空间更好适应的灵活性 。 两处赠送空间也更好的结合业主的职业需求与收纳需要做了针对性的设计 , 化繁为简 , 动静交织 , 用简单直观的手法展现立体的空间美感 , 成就返璞归真的自然之境 。
黑白的理性美学 , 同样是整洁有序的 , 有条不紊的排序或是规整化的格局 , 在视觉上给人干净利落的印象 , 又弱化了整齐划一所带来的单调感 。
中国质量万里行■化繁为简,动静交织,整洁有序的黑白理性美学。
不锈钢块面的电视背景墙 , 同样使这一个理性的黑白交织的空间增加一点刚性的质感 , 机理所呈现的不同味道 , 结合光影的互动 , 营造一个纯粹的不附加任何雕饰的客厅空间 。
餐厅用一块黑色的背景强调了餐厅空间的区域性 , 也跟不锈钢的电视背景墙在整个客餐厅空间错落的相呼应 , 材质的交织 , 光线的互动 , 机理的叠影 。 原木色椅背结合金属腿的餐椅给这个纯净的位置加入一份温暖 。
转角的黑色鞋柜与餐厅的背景浑然一体 , 既是空间的延伸转折 , 更是功能上的体现 。 直对入户的端景用一个后现代的玄关柜 , 搭配艺术画 , 让进门的空间成为视觉纵向的引导 。
利用玄关柜背后的区域设计成了独立的干区 , 这里有屋主最简单的一些盥洗收纳 , 在平时可以就近解决一些盥洗需求 , 也很好的利用这块区域成为动线上的过渡 。
书房的长虹玻璃移门 , 保证了空间的通透性 , 也让这种质感成为整个空间过渡的衔接 。 从客餐厅到卧房的过渡 , 从放松到安静的过渡 , 从安心到静谧的过渡 。
主卧空间的处理更趋于简洁 , 设计师只让光线与时间存在 , 其他无论颜色与材质在这里都不重要了 , 他们都是为了让这里更祥和安静 , 只留下能让我们最直观的感官感受到温暖的元素 。
中国质量万里行■化繁为简,动静交织,整洁有序的黑白理性美学。
次卧室同样保留了最能够让我们感受到安静的状态 。
卫生间的材质也更多采用了黑白对比的方式 , 不同的材质会体现不同的感受 , 洁净的白 , 素雅的灰 , 沉着的黑 , 用温润的木质台盆柜点缀 , 既融合了白色的空间 , 又契合了安静的氛围 。
设计师利用入户的赠送空间 , 用更多柜体及榻榻米的形式 , 使其满足收纳的同时又增加了客房的功能 , 充分考虑了房屋未来的延展性 。
厨房也使用了纯粹的白色 , 结合地面的水磨石地砖 , 在自然的光影与机理当中感受生活的烟火味道 。
黑与白 , 本是自然的昼与夜 , 光影交织所传递出的自然之美 , 同样适用于建筑空间本身 。 能在住宅上更好的体现独特黑白质感 , 表达我们希望与自然和谐的声音 , 与光影交织的状态 , 那是最本质的内容 。
推荐阅读
- 美国用“核试验”来恫吓中国“核裁军”,那是赤裸裸的核讹诈
- 颠覆未来战场?美军成功测试新武器,但中国早用来砍树了
- “神童”将加入NBA发展联盟?未来的中国男篮,强敌恐不止日本!
- 疫情想借疫情敲诈中国是白日做梦!王毅这些话掷地有声
- 岂有此理,6000华人宣誓加入美国,扬言中国无权取消他们国籍
- 中国停止采购澳大利亚煤炭?澳政客风声鹤唳,这就是惹错人的后果
- 中国渔民再次立功! 巨大宝藏重见天日, 美国请求被拒之门外!
- 车质量可靠排行榜,实至名归,第五名让人意外
- 中国最强CMOS芯片厂商:打败索尼、三星,年销10亿多颗,全球第一
- 中国证监会就美国国会参议院通过《外国公司问责法案》事宜答记者问
